













| Kohdenumero | 13051 |
| Kohdetyyppi | Tuotantotila | Sijainti | Jasperintie 334 A |
| Kaupunginosa | Vähä-Vaitti |
| Huoneluku | |
| Pinta-ala | 2 143,0 m² |
| Kokonaispinta-ala | 2 140,0 m² |
| Ranta | Ei valittu |
| Rannan tyyppi | Meri |
| Vapautuminen | Vapautuu sopimuksen mukaan |
| Vuokra / kk | 0 € |
| Sopimustyyppi | Toistaiseksi |
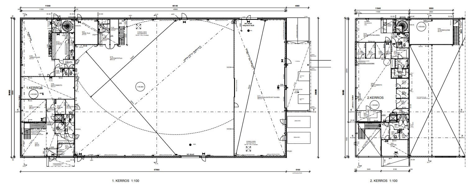
Vuokrataan hallitilaa toimistolla 2143 m² Etsitkö kasvua tukevaa toimitilaa erinomaisella sijainnilla? Kesällä 2026 vapautumassa vuokrattavaksi selkeää ja korkeaa hallitilaa näkyvällä paikalla, suoraan ohitustien varrella. Kiinteistölle on helppo saavutettavuus joka puolelta kaupunkia. Vuokrattavan toimitilan kokonaispinta-ala on 2143 m², josta noin 1450 m² on korkeaa ja avaraa hallitilaa. Toimistoa löytyy kahdessa kerroksessa yhteensä noin 683 m² – tilavat huoneet isoilla ikkunoilla tarjoavat valoisan ja viihtyisän työympäristön. Hallissa on kaksi nosto-ovea sekä lastauslaituri, jossa kaksi kuormaussiltaa helpottavat tavaraliikennettä. Tilat on varustettu pukuhuoneilla sekä hallin että toimiston puolella – lisäksi käytössä on oma sauna ja edustustila. Kohteella on hyvin parkkipaikkoja saatavilla. Lisätiedot Harri Talvitie p.041 314 7463, harri.talvitie@rhg.fi Lisää kohteita www.rhg.fi
| Sauna |
Harri Talvitie
Toimitilavälittäjä
0413147463
Lähetä viesti