Joukahaisenkatu 6, 20520 Turku

Toimistotila, 211 m²

0 € / kk

0 € / kk

Kupittaa

Perustiedot

Kohdenumero 13033
Kohdetyyppi Toimistotila
Sijainti Joukahaisenkatu 6
Kaupunginosa Kupittaa
Huoneluku
Pinta-ala 211,0 m²
Lisätietoja pinta-alasta Vuokraan jyvitetään osuus käytävästä
Ranta Ei valittu
Rannan tyyppi Meri
Vapautuminen Vapautuu: 01.03.2026
Vuokra / kk 0 €
VuokravakuusSopimuksen mukaan
SopimustyyppiToistaiseksi
Video

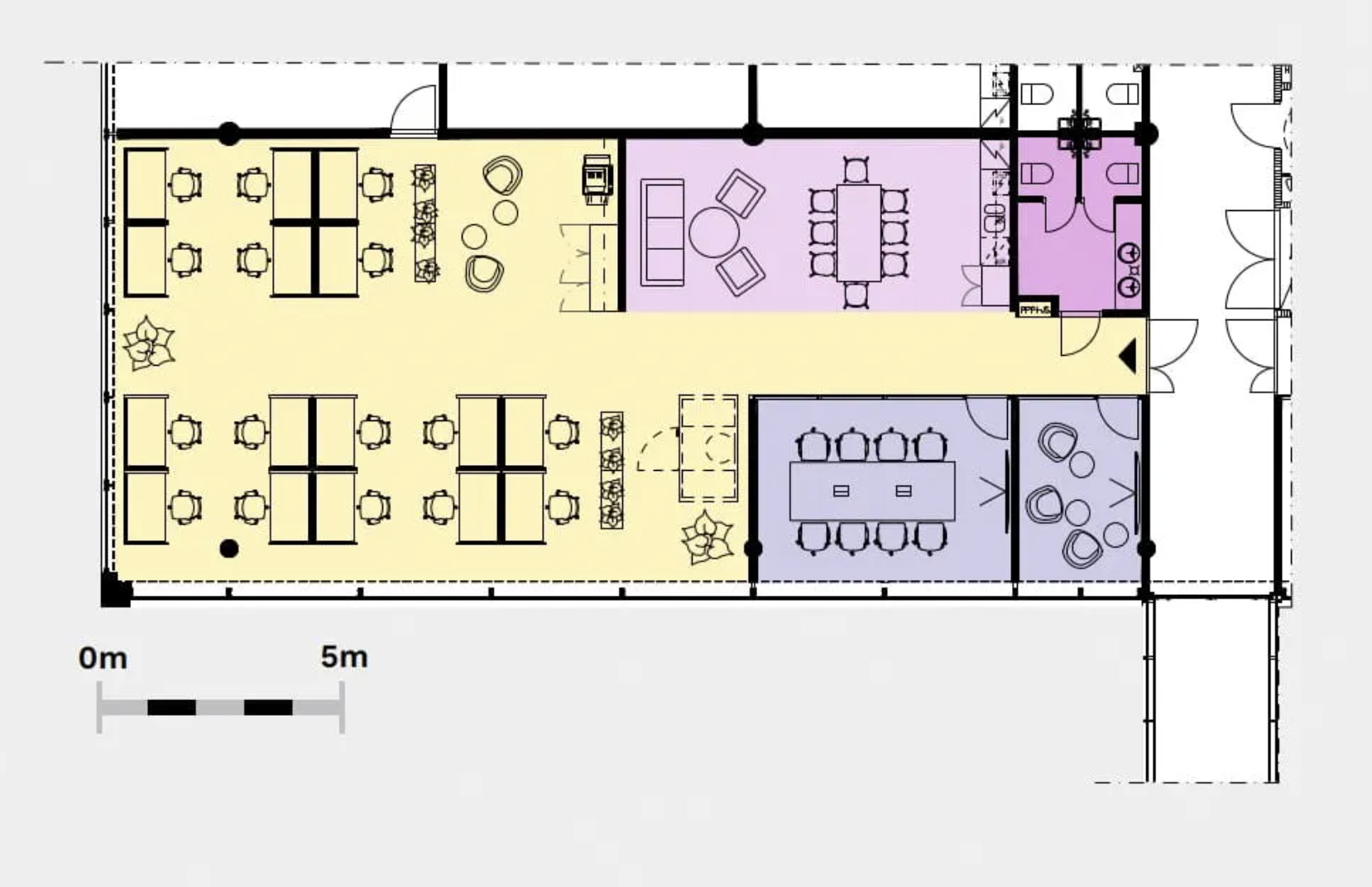
  Toimistotilaa Intelligate ll kiinteistössä Kupittaan rautatieaseman vieressä. Intelligate ll on Kupittaan alueen moderneja liike- ja toimistokiinteistöjä, jossa neliöt ovat tyylikkäät ja tehokkaasti käytössä. Erinomaiset yhteydet sekä autolla että junalla, ja keskustasta matka taittuu bussilla 10 minuutissa. Kupittaan juna-asema ja Helsingin moottoritie sijaitsevat rakennuksen vieressä ja pysäköintiin löytyy hyvät vaihtoehdot niin rakennuksen parkkihallista kuin viereisiltä parkkialueiltakin. Samassa kiinteistössä on lukuisten muiden yritysten lisäksi mm. lounaskahvila, parturi sekä terveyskeskus. Viereisistä rakennuksista löytyy kattava valikoima erilaisia lounasravintoloita Intelligate II tornin 6. kerroksesta vapautuu hyväkuntoinen toimistotila. Toimiston pinta-ala on 197,5 m2 ja vuokraan lisätään jyvitys kerroksen yhteisalueesta n. 15 m2. Yhteisalueella on mm. inva-wc. Huoneisto käsittää pääosin avotyötilaa, jonka lisäksi löytyy taukotila, neuvotteluhuone ja yksi erillinen työhuone. Työhuonetiloja on mahdollista lisätä. Tiloja on mahdollista muokata asiakkaan tarpeita vastaavaksi. Kysy lisätietoja: Juho Viljanen juho.viljanen@rhg.fi 0407417522   

  Navigoi kohteeseen
Sauna Ei saunaa
Nimi Kupittaan Kolmio
Talossa hissi Ei
Tontin omistus Oma
Energialuokka Ei lain edellyttämää energiatodistusta

Juho Viljanen
LKV
  040 741 7522
  Lähetä viesti

Haluatko lisätietoja juuri tästä kohteesta?

Syötä yhteystietosi niin lähetämme lisätietoja!

Kiitos, otamme sinuun pian yhteyttä!