









| Kohdenumero | 12982 |
| Kohdetyyppi | Toimistotila | Sijainti | Vantaanpuistontie 31 |
| Kaupunginosa | |
| Kiinteistötunnus | |
| Huoneluku | |
| Pinta-ala | 380,0 m² |
| Tontti | Oma tontti |
| Ranta | Ei valittu |
| Rannan tyyppi | Meri |
| Vapautuminen | Heti vapaa |
| Vuokra / kk | 0 € |
| Sopimustyyppi | Toistaiseksi |
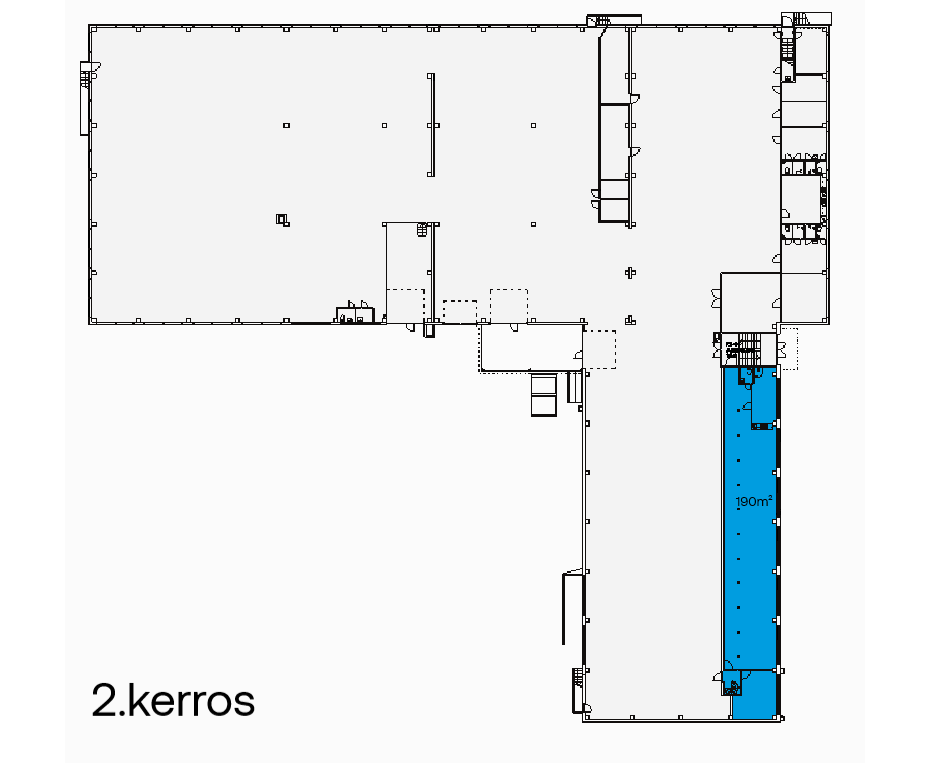
Toimisto jaettavissa: 190m2 / 2B avotilaa, sos.tila ja toimisto, 190m2/3B:ssä 5 huonetta, taukotila ja neuvottelutila. Vapautuminen neuvoteltavissa. Kysy lisää mika.tilli@rhg.fi. 0407013005
| Sauna |
| Energiatodistus | Ei lain edellyttämää energiatodistusta |
Mika Tilli
Välittäjä, LKV
0407013005
Lähetä viesti