Finlaysoninkuja 19, 33210 Tampere

Toimistotila, 262 m²

0 € / kk

0 € / kk

Keskusta

Perustiedot

Kohdenumero 12948
Kohdetyyppi Toimistotila
Sijainti Finlaysoninkuja 19
Kaupunginosa Keskusta
Huoneluku
Pinta-ala 262,0 m²
Kokonaispinta-ala 262,0 m²
Huoneiston kerros2
Ranta Ei valittu
Rannan tyyppi Meri
Vapautuminen Vapautuu: 01.02.2026
Vuokra / kk 0 €
VuokravakuusSopimuksen mukaan
SopimustyyppiToistaiseksi
Video

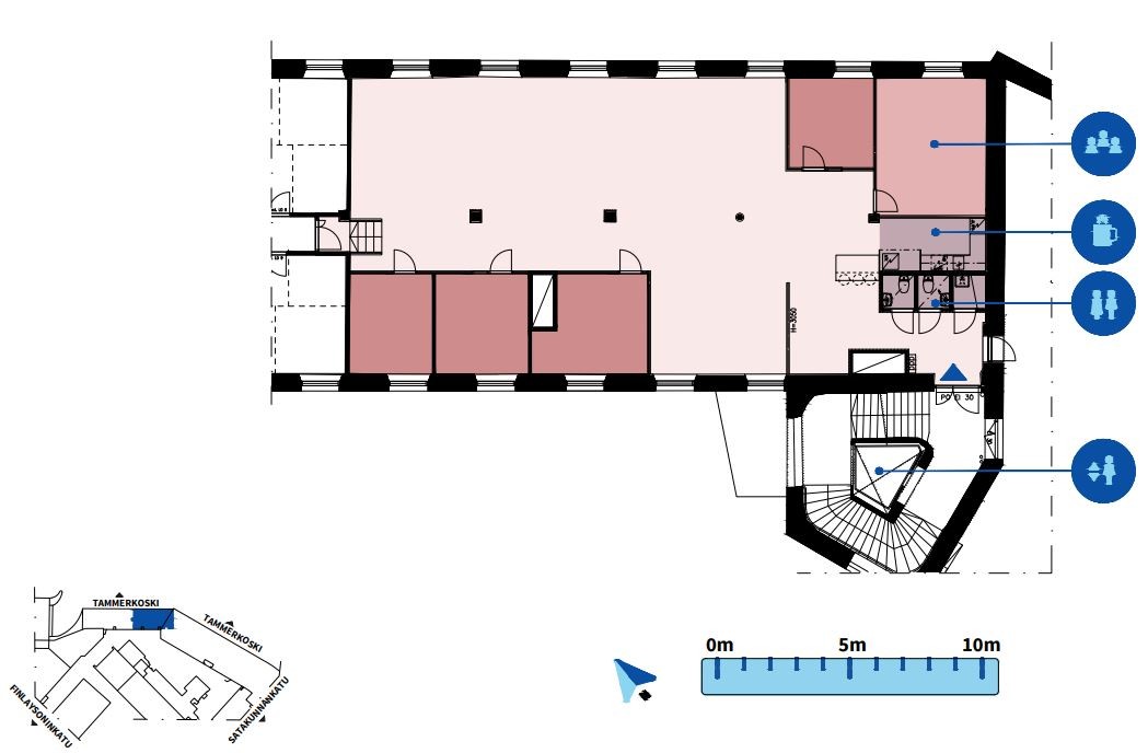
  Läpitalon korkea ja avara toimisto, upea koskinäkymä, vapautuu 1.2.2026. Tässä toimistotilassa on runsaasti ikkunoita kahteen suuntaan ja upeat koskimaisemat. Tilassa on oma taukokeittiö, neuvotteluhuone ja muutama työhuone sekä avotilaa. Kulku tiloihin hissillä tai portaita pitkin. Perinteikäs Finlaysonin alue on vireä liike-elämän, vapaa-ajan ja kulttuuritapahtumien keskus, jossa toimivissa yli 100 yrityksessä työskentelee ja asioi päivittäin tuhansia ihmisiä. Alueen useat ravintolat ja kahvilat mahdollistavat maukkaat lounas- ja kahvihetket. Finlaysonin alueen vanhat tehdasrakennukset tarjoavat yrityksellesi uniikin toimintaympäristön Tammerkosken maisemissa. Alueen rakennukset ovat BREEAM In-Use -ympäristösertifioituja. Finlaysonin alue on helposti saavutettavissa omalla autolla, julkisin kulkuvälinein ja kevyellä liikenteellä. Keskustori ja rautatieasema ovat kävelymatkan etäisyydellä. Lisätietoja Harri Talvitie, 041 314 7463, harri.talvitie@rhg.fi Lisää kohteita www.rhg.fi  

  Navigoi kohteeseen
Sauna Ei saunaa

Harri Talvitie
Toimitilavälittäjä
  0413147463
  Lähetä viesti

Haluatko lisätietoja juuri tästä kohteesta?

Syötä yhteystietosi niin lähetämme lisätietoja!

Kiitos, otamme sinuun pian yhteyttä!