Kauppiaskatu 11 E, 20100 Turku

Liiketila, 148 m²

0 € / kk

0 € / kk

Perustiedot

Kohdenumero 12850
Kohdetyyppi Liiketila
Sijainti Kauppiaskatu 11 E
Kaupunginosa
Huoneluku
Pinta-ala 148,0 m²
Ranta Ei valittu
Rannan tyyppi Meri
Vapautuminen Vapautuu sopimuksen mukaan
Vuokra / kk 0 €
VuokravakuusSopimuksen mukaan
SopimustyyppiToistaiseksi
Video

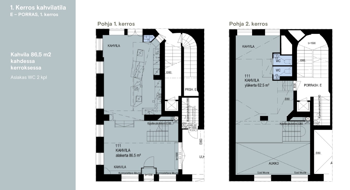
  Vuokrattavana on noin 148 neliömetrin liiketila Turun Kauppatorin välittömässä läheisyydessä, osoitteessa Kauppiaskatu 11. Tilassa on aiemmin toiminut Roberts Coffee -niminen kahvila. Tilakokonaisuus koostuu katutason 86,5 m² tilasta sekä toisen kerroksen (2. krs) 62,5 m² asiakastilasta. Kiinteistön peruskorjaus kyseisen rapun osalta valmistuu marraskuun lopussa, joten tila on vuokrattavissa aikaisintaan 1.12.2025 alkaen. Vuokrapyyntö on 35 euroa/m²/kk + alv + sähkö ja vesi. Lopullinen kokonaisvuokra määräytyy tapauskohtaisesti riippuen kokonaisuudesta, mahdollisesta investointitarpeesta ja vuokra-ajasta. Kellarissa on lisäksi vuokrattavissa lisää varastotilaa. Lisää toimitiloja www.rhg.fi Kohteella ei ole lain edellyttämää energiatodistusta ja sen vuoksi energialuokka ei ole tiedossa  

  Navigoi kohteeseen
Sauna

Tony Rosenblad
Hallituksen puheenjohtaja
  +358 50 551 5375
  Lähetä viesti

Haluatko lisätietoja juuri tästä kohteesta?

Syötä yhteystietosi niin lähetämme lisätietoja!

Kiitos, otamme sinuun pian yhteyttä!