









| Kohdenumero | 12848 |
| Kohdetyyppi | Toimistotila | Sijainti | Uudenmaankatu 19 |
| Kaupunginosa | |
| Huoneluku | |
| Pinta-ala | 257,0 m² |
| Huoneiston kerros | 2.krs |
| Lämmitysjärjestelmä | Kaukolämpö |
| Ranta | Ei valittu |
| Rannan tyyppi | Meri |
| Vapautuminen | 1.4.2026 |
| Neliöhinta | 1 007,78 € |
| Hoitovastike | 1 788,72 € |
| Myyntihinta | 259 000 € |
| Velkaosuus | 0 € |
| Velaton hinta | 259 000 € |
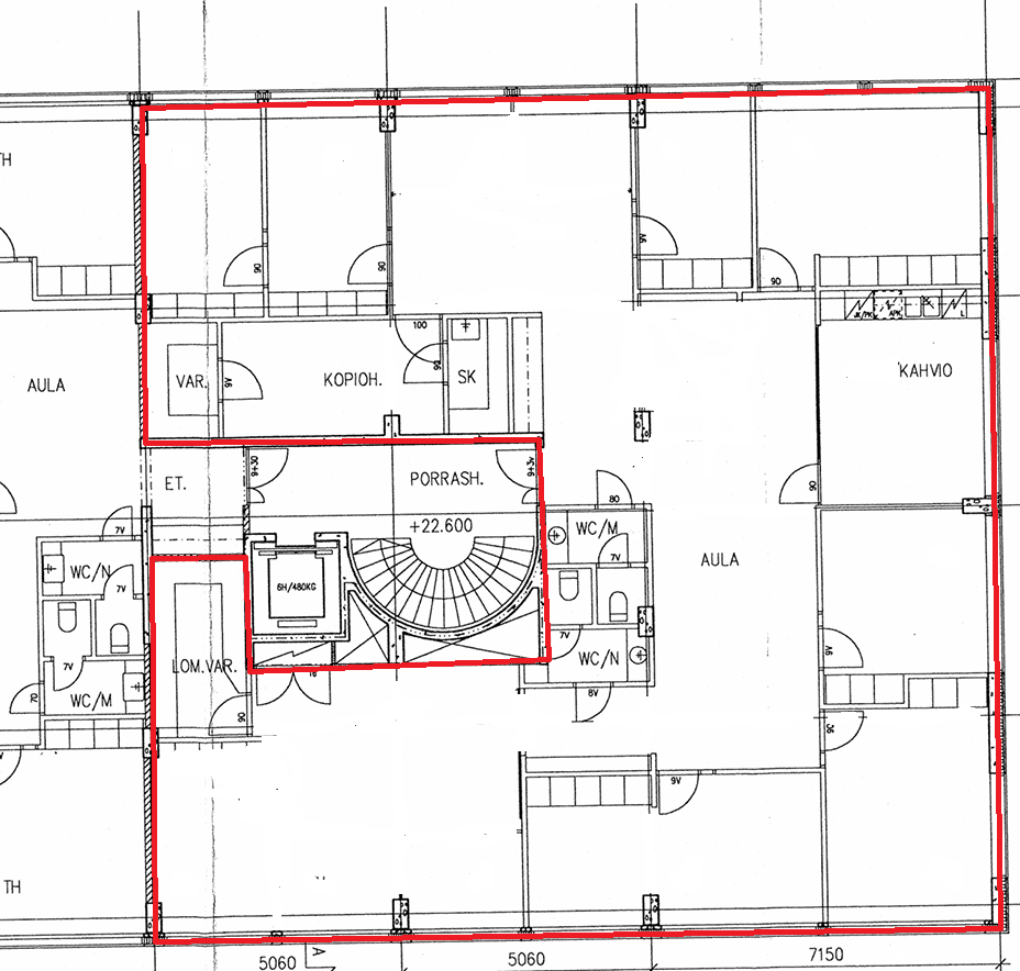
Myydään toisen kerroksen 257 m² toimistohuoneisto erinomaisella näkyvyydellä Asunto Oy Uudenmaantulli -nimisessä yhtiössä, osoitteessa Uudenmaankatu 19, 20100 Turku. Läpitalon valoisa tila käsittää seitsemän erikokoista huonetta sekä tilavan tauko- ja keittiötilan. Kiinteistössä on kaukolämpö, huoneistokohtainen sähkönmittaus ja koneellinen jäähdytys. Huoneisto on tällä hetkellä vuokrattu Turun kaupungille 30.3.2026 asti. Tila soveltuu teknisesti toimistokäyttöön, mutta ostajalla on hyvät edellytykset hakea käyttötarkoituksen muutosta asuinhuoneistoksi. Muutosta puoltaa se, että taloyhtiössä on aiemmin myönnetty useita vastaavia lupia, mikä tekee muutoksen hakemisesta todennäköisesti mahdollista taloyhtiön sääntöjen ja rakenteiden puitteissa. Velaton hinta on 259 000 euroa. Lisäksi myynnissä kolme autopaikkaa kiinteistöyhtiön parkkitalossa, hintaan 10 000 euroa/kpl. Kohde vapautuu 1.4.2026. Lisää toimistotiloja: www.rhg.fi.
| Sauna |
| Nimi | Kiinteistö Oy Uudenmaantulli |
| Rakennusvuosi | 1991 |
| Lämmitysjärjestelmä | Kaukolämpö |
| Rakennusmateriaali | Betoni elementti |
| Kerroksia | 7 |
| Talossa hissi | Kyllä |
| Tontin omistus | Vuokra |
| Vuokrasopimus päättyy | 30.04.2040 |
| Energialuokka | Ei lain edellyttämää energiatodistusta |
| Toteutetut autopaikat | 28 |
| Asuinhuoneistojen määrä | 48 |
| Asuinhuoneistojen pinta-ala yhteensä | 2 468,5 m² |
| Liiketilojen määrä | 7 |
| Liiketilojen pinta-ala yhteensä | 675,0 m² |
| Hoitovastike | 1 788,72 € / kk |
| Yhtiövastike | 1 788,72 € / kk |
Tony Rosenblad
Hallituksen puheenjohtaja
+358 50 551 5375
Lähetä viesti