



								



								| Kohdenumero | 12808 | 
| Kohdetyyppi | Toimistotila | Sijainti | Piiskakuja 1 | 
| Kaupunginosa | |
| Huoneluku | |
| Pinta-ala | 230,0 m² | 
| Ranta | Ei valittu | 
| Rannan tyyppi | Meri | 
| Vapautuminen | Vapautuu sopimuksen mukaan | 
| Vuokra / kk | 0 € | 
| Vuokravakuus | Sopimuksen mukaan | 
| Sopimustyyppi | Toistaiseksi | 
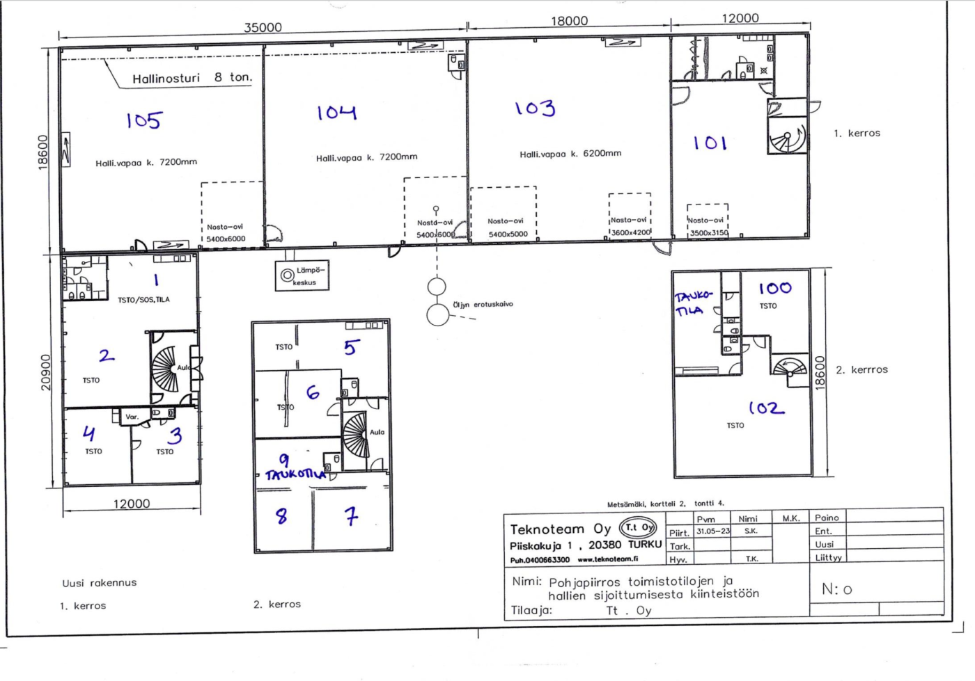
Vuokrattavana 2.krs noin 230 m² toimistotilat Turun Piiskakujalla, osoitteessa Piiskakuja 1. Erinomainen sijainti Orikedon teollisuusalueen ja Kehätien välittömässä läheisyydessä. Tilakokonaisuus sisältää toimistotilat,keittiö sekä lisäksi wc-tilat ja pukuhuone suihkulla. Toimistossa ilmalämpöpuhallin jäähdytyksellä. Pohjakuvassa tila merkitty numerolla 100&102. Tila vapautuu sopimuksen mukaan Lisää toimitiloja www.rhg.fi Kohteella ei ole lain edellyttämää energiatodistusta ja sen vuoksi energialuokka ei ole tiedossa
| Sauna | 
								
								Tony Rosenblad
								Hallituksen puheenjohtaja
								
								  +358 50 551 5375								
								  Lähetä viesti