













| Kohdenumero | 12796 |
| Kohdetyyppi | Varasto | Sijainti | Ansatie 4 |
| Kaupunginosa | |
| Kiinteistötunnus | |
| Huoneluku | |
| Pinta-ala | 2 686,5 m² |
| Tontti | Oma tontti |
| Ranta | Ei valittu |
| Rannan tyyppi | Meri |
| Vapautuminen | Heti vapaa |
| Vuokra / kk | 0 € |
| Sopimustyyppi | Toistaiseksi |
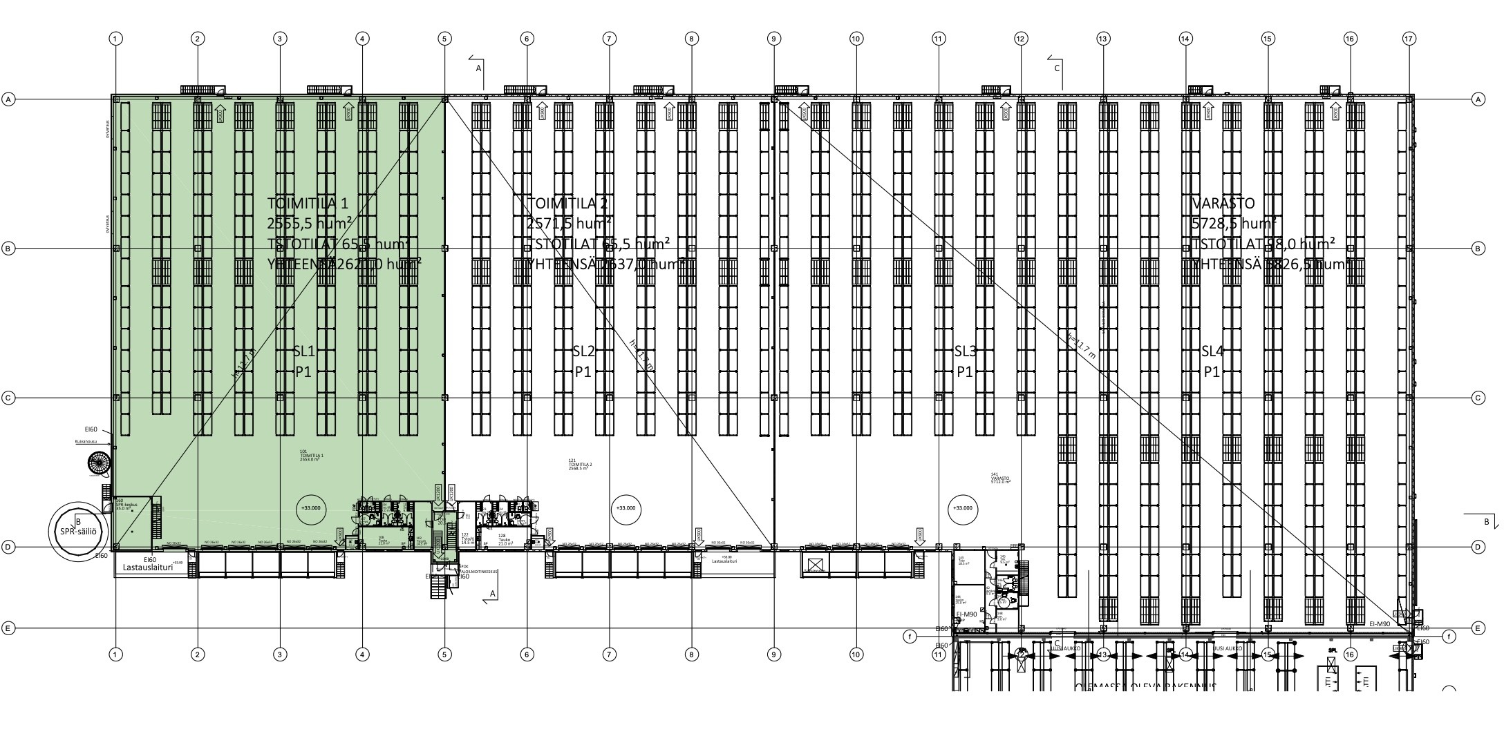
Vuokrattavana 11 m korkeaa ja uudeentasoista käytännöllistä varastotilaa viidellä lastaustaskulla ja lisäksi avolaituri nosto-ovella. Kohde hyvällä sijainnilla Kehä III:n suorassa läheisyydessä. Toimitilan koko: varasto 2555,5 m² + parvitoimisto 65,5 m² sekä 1. kerroksen sosiaali- ja taukotilat 65,5 m². kysy mika.tilli@rhg.fi. 040 7013005
| Sauna |
| Energiatodistus | Ei lain edellyttämää energiatodistusta |
Mika Tilli
Välittäjä, LKV
0407013005
Lähetä viesti