Uudenmaankatu 11, 20100 Turku

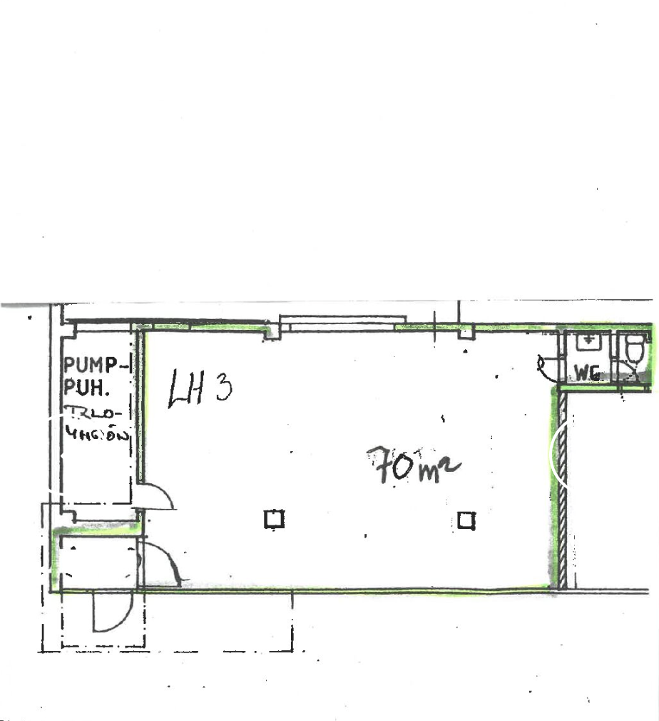
Liiketila, 70 m²

805 € / kk

805 € / kk

Perustiedot

Kohdenumero 12778
Kohdetyyppi Liiketila
Sijainti Uudenmaankatu 11
Kaupunginosa
Huoneluku
Pinta-ala 70,0 m²
Ranta Ei valittu
Rannan tyyppi Meri
Vapautuminen Heti vapaa
Vuokra / kk 805 €
VuokravakuusSopimuksen mukaan
SopimustyyppiToistaiseksi
Video

  Vuokrattavana liiketila Turun keskustan tuntumasta Tarjolla noin 70 m² liiketila erinomaisella sijainnilla osoitteessa Uudenmaankatu 11, Turku. Tila sijaitsee näkyvällä paikalla vilkkaan kadun varrella, ja suuret näyteikkunat avautuvat suoraan Uudenmaankadulle – täydellinen ratkaisu yritykselle, joka kaipaa näkyvyyttä. Bussipysäkki sijaitsee lähes sisäänkäynnin edessä, mikä takaa helpon saavutettavuuden sekä asiakkaille että henkilökunnalle. Vuokra: 805 €/kk + alv Sähkö ja vesi kulutuksen mukaan Tila on heti vapaa  

  Navigoi kohteeseen
Sauna
Nimi Kiinteistö Oy Uudenmaanrinne
Talossa hissi Kyllä
Tontin omistus Vuokra
Energialuokka Ei lain edellyttämää energiatodistusta

Tony Rosenblad
Hallituksen puheenjohtaja
  +358 50 551 5375
  Lähetä viesti

Haluatko lisätietoja juuri tästä kohteesta?

Syötä yhteystietosi niin lähetämme lisätietoja!

Kiitos, otamme sinuun pian yhteyttä!