









| Kohdenumero | 12761 |
| Kohdetyyppi | Toimistotila | Sijainti | Karhumäenkuja 2 |
| Kaupunginosa | |
| Huoneluku | |
| Pinta-ala | 489,0 m² |
| Vapautuminen | Heti vapaa |
| Vuokra / kk | 0 € |
| Sopimustyyppi | Toistaiseksi |
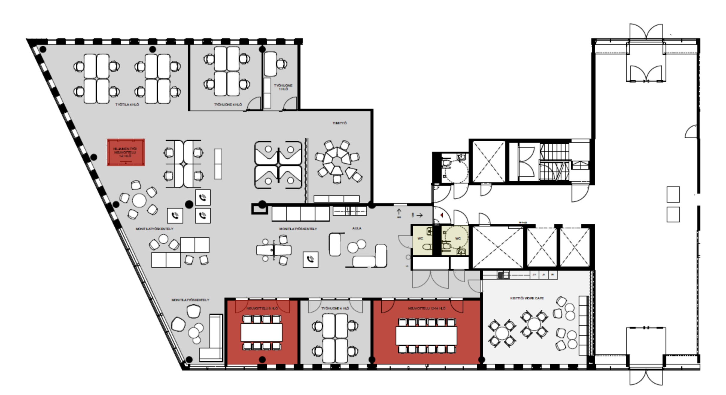
Vuokrataan ensimmäisen kerroksen 445 m2 edustavat toimitilat. Lisäksi jyvitetyt yhteiskäyttötilat 44 m2, jolloin kokonaisala on yhteensä 446 m2. Aviabulevardin tyylikäs moderni toimistotalo sijaitsee juna-aseman välittömässä läheisyydessä, josta Helsinki-Vantaan lentokenttäterminaalit T1 ja T2 ovat vain minuutin junamatkan päässä. Lähemmäksi lentokenttää on vaikea päästä autollakaan kulkiessa. Samassa pihapiirissä toimiva hotelli Clarion täydentää Aviabulevardi-kokonaisuuden korkeatasoisilla majoitus-, kokous-, virkistys- ja ravintolapalveluillaan. Kysy lisää: jouko.raitanen@rhg.fi/0504695444
| Sauna | Ei saunaa |
Jouko Raitanen
050 469 5444
Lähetä viesti