







| Kohdenumero | 12757 |
| Kohdetyyppi | Toimistotila | Sijainti | Karhumäentie 3 |
| Kaupunginosa | |
| Huoneluku | |
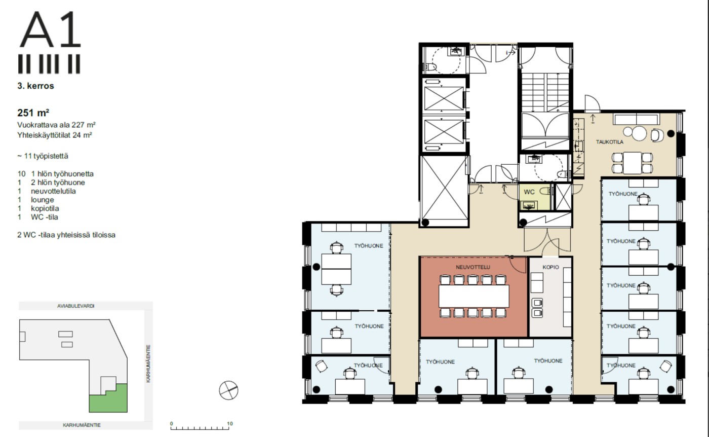
| Pinta-ala | 251,0 m² |
| Vapautuminen | Heti vapaa |
| Vuokra / kk | 0 € |
| Sopimustyyppi | Toistaiseksi |
Vuokrataan kolmannen kerroksen 227m2 toimistotila + jyvitetyt yhteiskäyttötilat 24m2 .Aviabulevardin tyylikäs moderni toimistotalo sijaitsee juna-aseman välittömässä läheisyydessä, josta Helsinki-Vantaan lentokenttäterminaalit T1 ja T2 ovat vain minuutin junamatkan päässä. Lähemmäksi lentokenttää on vaikea päästä autollakaan kulkiessa. Samassa pihapiirissä toimiva hotelli Clarion täydentää Aviabulevardi-kokonaisuuden korkeatasoisilla majoitus-, kokous-, virkistys- ja ravintolapalveluillaan. Kysy lisää: jouko.raitanen@rhg.fi/0504695444
| Sauna | Ei saunaa |
Jouko Raitanen
050 469 5444
Lähetä viesti