





| Kohdenumero | 12733 |
| Kohdetyyppi | Liiketila | Sijainti | Vanhanlinnantie 3 |
| Kaupunginosa | |
| Huoneluku | |
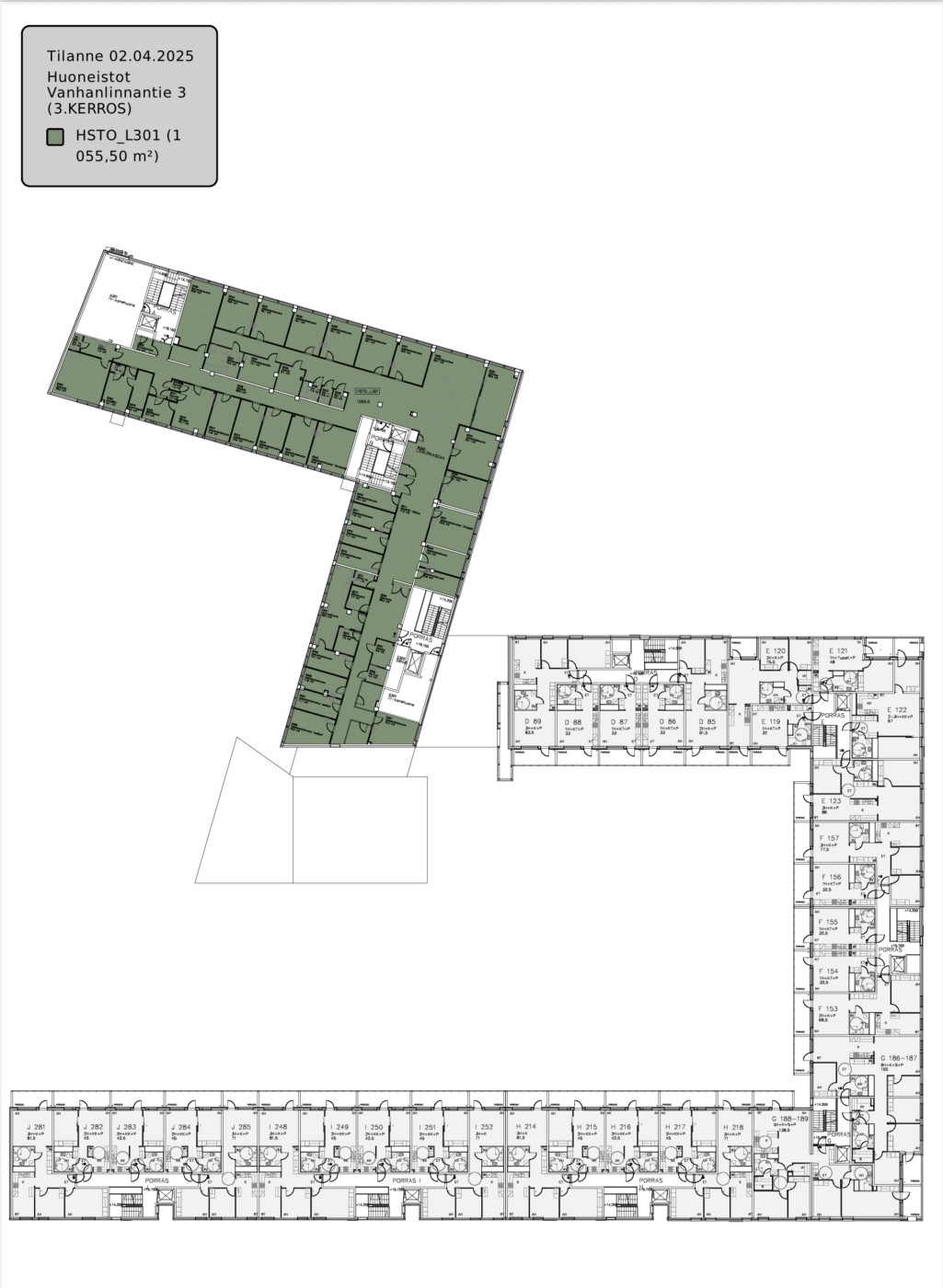
| Pinta-ala | 1 055,0 m² |
| Vapautuminen | Heti vapaa |
| Vuokra / kk | 0 € |
| Sopimustyyppi | Toistaiseksi |
Vuokrataan 1055 m2 muuntojoustava kokonaisuus kolmannessa kerroksessa aivan metroaseman läheisyydessä. Aiemmin lääkäriasemana toiminut tila koostuu useista vesipisteellisistä huoneista, jotka soveltuvat erinomaisesti terveys-, hyvinvointi- tai toimistokäyttöön. Sijainti tarjoaa erinomaiset kulkuyhteydet niin julkisilla kuin omalla autolla liikkuville, ja pysäköintipaikkoja on saatavilla sekä kiinteistön autohallista että viereisestä Prisman pysäköintihallista. Vapautuu aikaisintaan 1.12.2025 ja viimeistään 30.4.2026. Kysy lisää: jouko.raitanen@rhg.fi/0504695444
| Sauna | Ei saunaa |
Jouko Raitanen
050 469 5444
Lähetä viesti