Yrjönalhontie 7, 20660 Lieto

Varasto, 1700 m²

0 € / kk

0 € / kk

Perustiedot

Kohdenumero 12704
Kohdetyyppi Varasto
Sijainti Yrjönalhontie 7
Kaupunginosa
Kiinteistötunnus
Huoneluku
Pinta-ala 1 700,0 m²
Tontti Oma tontti
Vapautuminen Vapautuu: 31.12.2025
Vuokra / kk 0 €
SopimustyyppiToistaiseksi
Video

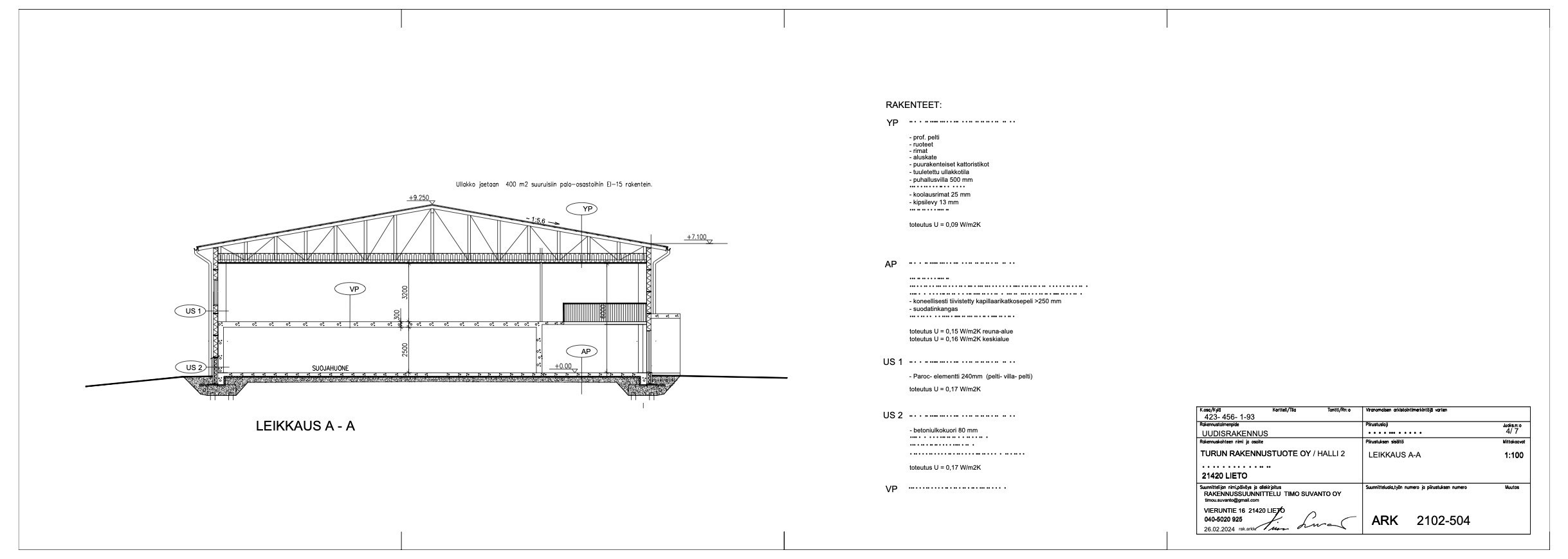
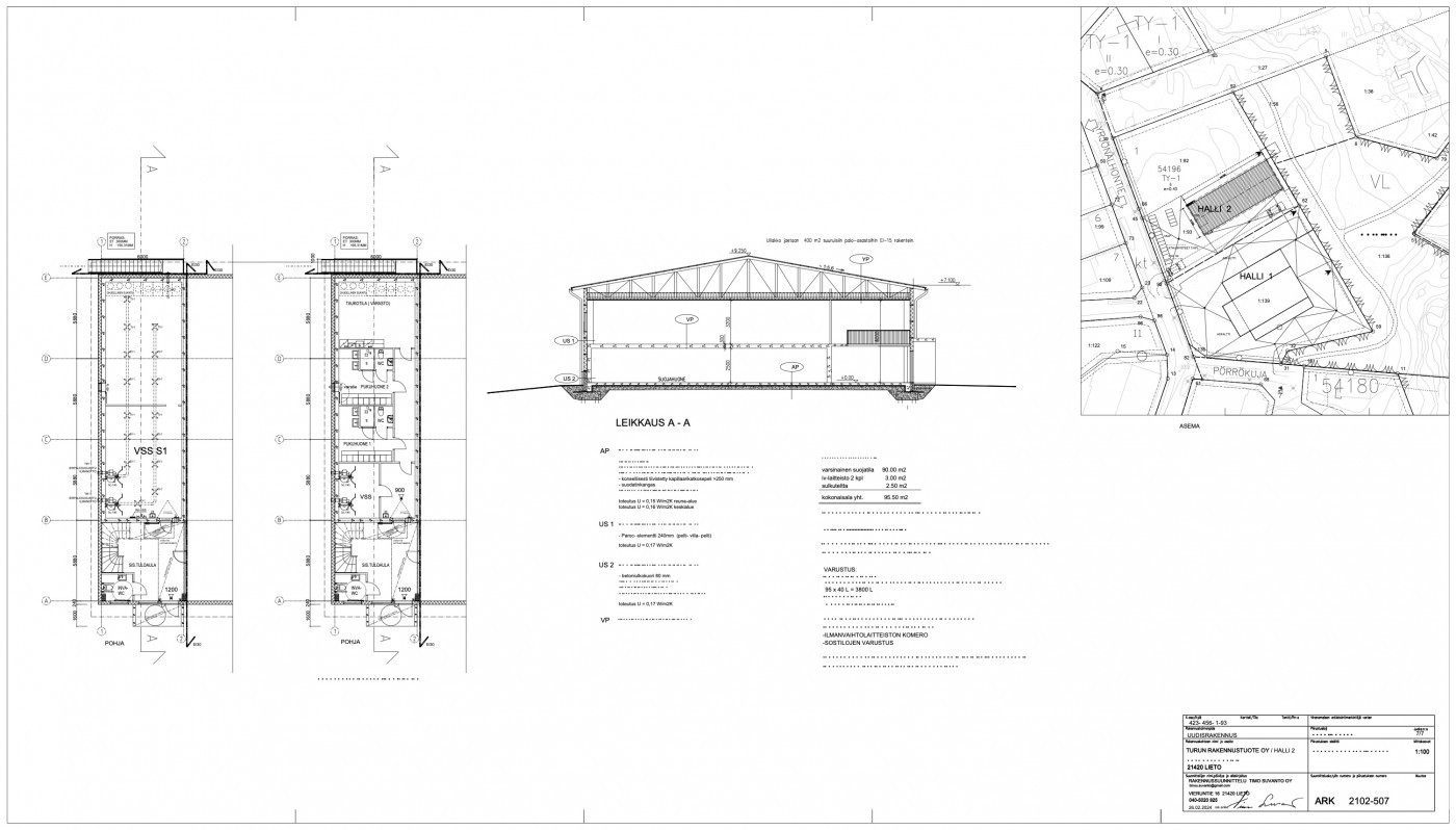
  Vuokrattavana noin 1 700 m2 varasto-tuotantotila, Tuulissuon teollisuus-alueella, osoitteessa Yrjönalhontie 7, Lieto. Kyseessä uudiskohde joka valmistuu loppuvuodesta 2025. Sisäkuvat vastaavanlaisesta hallista. Hallin ulkomitat syvyys 24m x pituus 66m, korkeus 6,5 metriä. Tilakokonaisuus jossa 1 400m2 hallin lisäksi 300m2 toimisto- ja sosiaalitiloja kahdessa kerroksessa Mahdollisuus räätälöidä tilan lopullinen lay-out käyttäjän tarpeiden mukaan. Lämpömuoto ilmalämpöpumput Kiinteistöön tule valokuituliittymä. Lisää toimitiloja www rhg.fi  

  Navigoi kohteeseen
Sauna Ei saunaa
Energiatodistus Ei lain edellyttämää energiatodistusta

Tony Rosenblad
Hallituksen puheenjohtaja
  +358 50 551 5375
  Lähetä viesti

Haluatko lisätietoja juuri tästä kohteesta?

Syötä yhteystietosi niin lähetämme lisätietoja!

Kiitos, otamme sinuun pian yhteyttä!