































| Kohdenumero | 12701 |
| Kohdetyyppi | Toimistotila | Sijainti | Virkatie 1 |
| Kaupunginosa | |
| Huoneluku | |
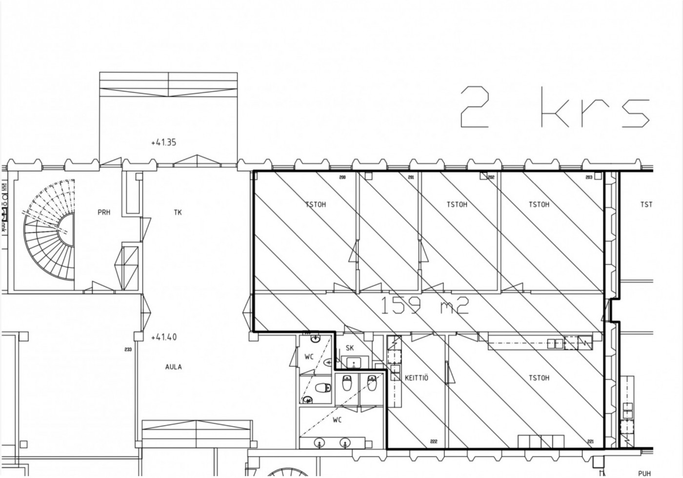
| Pinta-ala | 159,0 m² |
| Ranta | Ei valittu |
| Rannan tyyppi | Meri |
| Vapautuminen | Heti vapaa |
| Vuokra / kk | 1 749 € |
| Sopimustyyppi | Toistaiseksi |
Vuokrataan 159m2 saneerattua toimistotilaa erinomaisella sijainnilla vilkkaan Kehä III:n varrella. Iso asfaltoitu piha-alue, josta mahdollisuus vuokrata autopaikkoja. Myös normaali- ja teholatauspisteet. Mahdollisuus vuokrata myös varasto- tai arkistotilaa samasta rakennuksesta. Kysy lisää: jouko.raitanen@rhg.fi/0504695444
| Sauna | Ei saunaa |
Jouko Raitanen
050 469 5444
Lähetä viesti