Konala






















| Kohdenumero | 12675 |
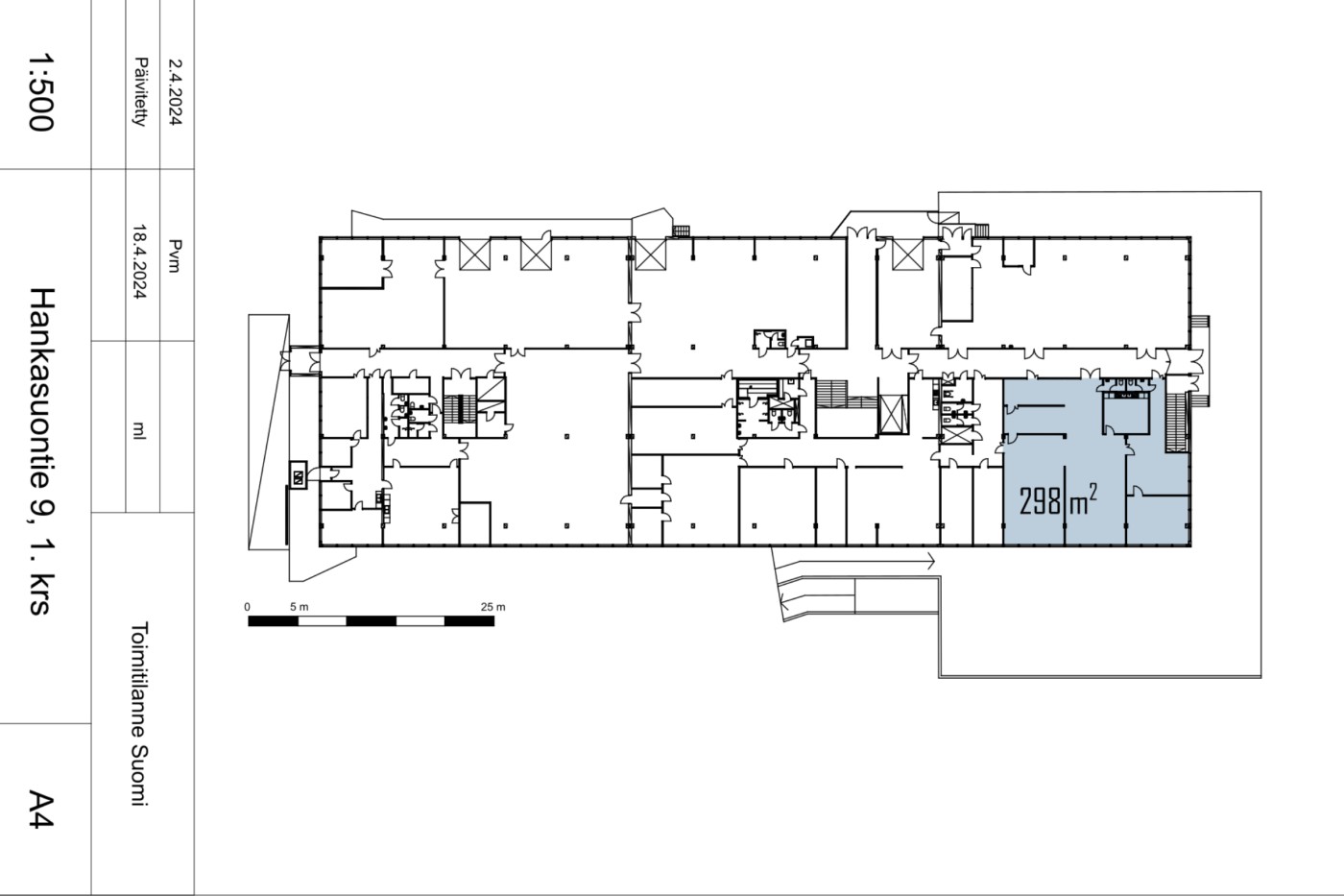
| Kohdetyyppi | Varasto | Sijainti | Hankasuontie 9 |
| Kaupunginosa | Konala |
| Huoneluku | |
| Pinta-ala | 298,0 m² |
| Vapautuminen | Heti vapaa |
| Vuokra / kk | 0 € |
| Sopimustyyppi | Toistaiseksi |
Vuokrataan katutason 298 m2 toimisto-varastotila, jossa keittiö ja wc:t. Toimiston osuus on noin 152 m2 ja varaston 146 m2. Lastauslaituri käytössä. Väliseiniä on mahdollista poistaa ja näin avata tiloja. Rauhallinen sisäänkäynti pihan puolelta, jossa parkkipaikkoja. Kiinteistö sijaitsee Vihdintien tuntumassa vilkkaalla Hankasuontien teollisuus- ja yritysalueella. Rakennuksessa toimii tällä hetkellä yrityksiä mm. maahantuonnin, tukkukaupan, kokoonpanon ja B2B-toiminnan parista. Lisätietoa kiinteistöstä. Kysy lisää: jouko.raitanen@rhg.fi/0504695444
| Sauna | Ei saunaa |
Jouko Raitanen
050 469 5444
Lähetä viesti