Vuorikatu 20, 00100 Helsinki

Toimistotila, 645 m²

0 € / kk

0 € / kk

Perustiedot

Kohdenumero 12557
Kohdetyyppi Toimistotila
Sijainti Vuorikatu 20
Kaupunginosa
Huoneluku
Pinta-ala 645,0 m²
Vapautuminen Heti vapaa
Vuokra / kk 0 €
SopimustyyppiToistaiseksi
Video

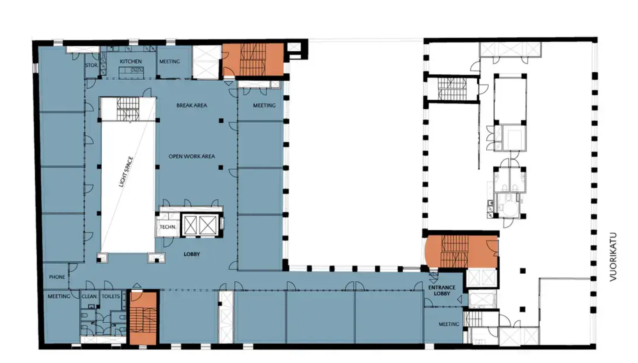
  Vuokrattavana moderni ja muuttovalmis toimistotila loistavalla sijainnilla! Tarjolla toisen kerroksen avara ja nykyaikainen 645 m2 toimistotila, joka on muuttovalmis. Tilaan on mahdollista sijoittaa työpisteet noin 40–50 hengelle, ja lisäksi se tarjoaa runsaasti ryhmätyö- ja neuvottelutiloja, jotka tukevat monipuolista ja tehokasta työskentelyä. Sijainti on erinomainen aivan Helsingin ydinkeskustan tuntumassa, hyvien palveluiden äärellä. Yliopiston metroasema sijaitsee kiinteistön välittömässä läheisyydessä, mikä takaa erinomaiset julkiset liikenneyhteydet. Moderni talotekniikka mukautuu monenlaisiin tarpeisiin ja näyttävä atrium-sisäpiha tuo valoa. Käyttäjiä hemmottelee rakennuksen ravintola, erinomaiset liikenneyhteydet ja kaikki keskustan palvelut. Vuorikadulta on suora yhteys rautatieasemalle, metrotunnelin kauppoihin ja ravintoloihin sekä Yliopistonkadulle. PYSÄKÖINTI Kiinteistössä oma pysäköintihalli, 16 autopaikkaa. EuroPark - Kluuvi 100m kävelymatkan päässä. Mahdollisuus lyhytaikaiseen kadunvarsipysäköintiin. PALVELUT Kiinteistössä oma lounasravintola. Helsingin ydinkeskusta, keskustan ravintolat ja palvelut kävelyetäisyydellä. Täältä on lyhyt matka mihin tahansa Helsingin keskustassa. KULKUYHTEYDET Kaisaniemenkadun metro, raitio- ja bussipysäkit sijaitsevat n. 50 - 100 metrin etäisyydellä. Kysy lisää: jouko.raitanen@rhg.fi/0504695444  

  Navigoi kohteeseen
Sauna Ei saunaa

Jouko Raitanen

  050 469 5444
  Lähetä viesti

Haluatko lisätietoja juuri tästä kohteesta?

Syötä yhteystietosi niin lähetämme lisätietoja!

Kiitos, otamme sinuun pian yhteyttä!