Keskusta


| Kohdenumero | 12534 |
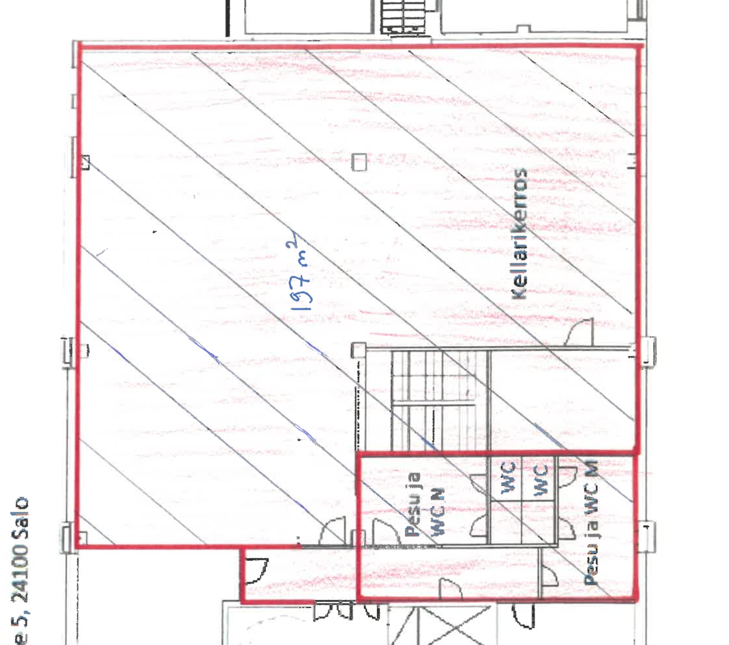
| Kohdetyyppi | Liiketila | Sijainti | Helsingintie 5 |
| Kaupunginosa | Keskusta |
| Huoneluku | |
| Pinta-ala | 283,0 m² |
| Ranta | Ei valittu |
| Rannan tyyppi | Meri |
| Vapautuminen | Heti vapaa |
| Vuokra / kk | 0 € |
| Vuokravakuus | Sopimuksen mukaan |
| Sopimustyyppi | Toistaiseksi |
Liikuntatilaa Salon keskustassa. Tilan kellarikerroksessa on toiminut kamppailusali ja katutason tilassa on ollut pieni kuntosali. Tila voidaan vuokrata myös muuhunkin kuin liikuntakäyttöön. Kerrosten välillä kulkee sisäporraskäytävä. Kiinteistö sijaitsee keskeisellä paikalla Salon keskustassa. Kiinteistön pihalla pysäköintitilaa. Talossa on tavarahissi suurempien tavaroiden liikutteluun.
| Sauna | Ei saunaa |
| Nimi | Kiinteistöosakeyhtiö Salon Leinonkulma |
| Talossa hissi | Ei |
| Tontin omistus | Oma |
| Energialuokka | Ei lain edellyttämää energiatodistusta |
| Muut maksut | Sähkö, vesi ja alv |
Juho Viljanen
LKV
040 741 7522
Lähetä viesti