Kamppi












| Kohdenumero | 12530 |
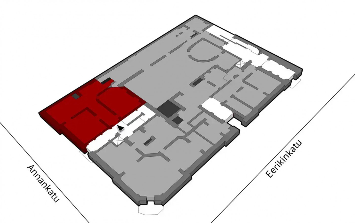
| Kohdetyyppi | Liiketila | Sijainti | Annankatu 27 |
| Kaupunginosa | Kamppi |
| Huoneluku | |
| Pinta-ala | 137,0 m² |
| Huoneiston kerros | 1 |
| Vapautuminen | Heti vapaa |
| Vuokra / kk | 0 € |
| Sopimustyyppi | Toistaiseksi |
Tarjolla erinomainen mahdollisuus vuokrata korkeatasoinen, 137 m2 katutason liiketila yhdeltä Helsingin vilkkaimmista sijainneista. Tila sijaitsee keskeisellä ja näkyvällä paikalla Annankadulla, lyhyen kävelymatkan päässä Kampin metro-asemasta ja kauppakeskuksesta sekä vilkkaista julkisen liikenteen solmukohdista. Kysy lisää: jouko.raitanen@rhg.fi/0504695444
| Sauna | Ei saunaa |
Jouko Raitanen
050 469 5444
Lähetä viesti