Eteläesplanadi 22, 00130 Helsinki

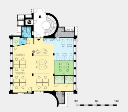
Toimistotila, 218 m², Avotila, neuvottelutila j...

0 € / kk

0 € / kk

Keskusta

Perustiedot

Kohdenumero 12518
Kohdetyyppi Toimistotila
Sijainti Eteläesplanadi 22
Kaupunginosa Keskusta
Huoneluku Avotila, neuvottelutila ja 2 vetäytymistila
Pinta-ala 218,0 m²
Ranta Ei valittu
Rannan tyyppi Meri
Vapautuminen Heti vapaa
Vuokra / kk 0 €
SopimustyyppiToistaiseksi
Video

  Vuokrattavana moderni 2.kerroksen toimisto (218 m2). Avotilan lisäksi toimistossa on neuvotteluhuone, 2 vetäytymistilaa, avokeittiö ja 3 wc:tä. . Kohteessa toimii suosittu lounasravintola. Kaikki ydinkeskustan palvelut lyhyen kävelymatkan päässä. Kysy lisää sp: heli.reinberg@rhg.fi Ydinkeskustan lukuisat ravintola- ja liike-elämän palvelut ovat erittäin lähellä. Talossa kaksi ravintolaa. Kysy lisää sp: heli.reinberg@rhg.fi, toimitilat www.rhg.fi  

  Navigoi kohteeseen
Sauna Ei saunaa

Heli Reinberg

  040 647 4900
  Lähetä viesti

Haluatko lisätietoja juuri tästä kohteesta?

Syötä yhteystietosi niin lähetämme lisätietoja!

Kiitos, otamme sinuun pian yhteyttä!