Kaurakatu 48, 20740 Turku

Tuotantotila, 704 m²

0 € / kk

0 € / kk

Perustiedot

Kohdenumero 12499
Kohdetyyppi Tuotantotila
Sijainti Kaurakatu 48
Kaupunginosa
Huoneluku
Pinta-ala 704,0 m²
Huoneiston kerros1/2
Ranta Ei valittu
Rannan tyyppi Meri
Vapautuminen Heti vapaa
Vuokra / kk 0 €
VuokravakuusSopimuksen mukaan
SopimustyyppiToistaiseksi
Video

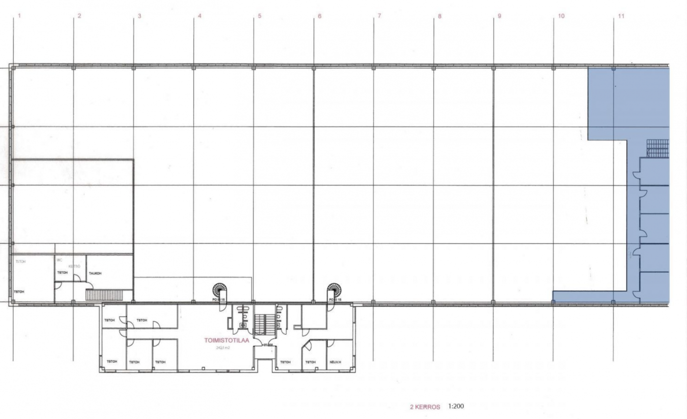
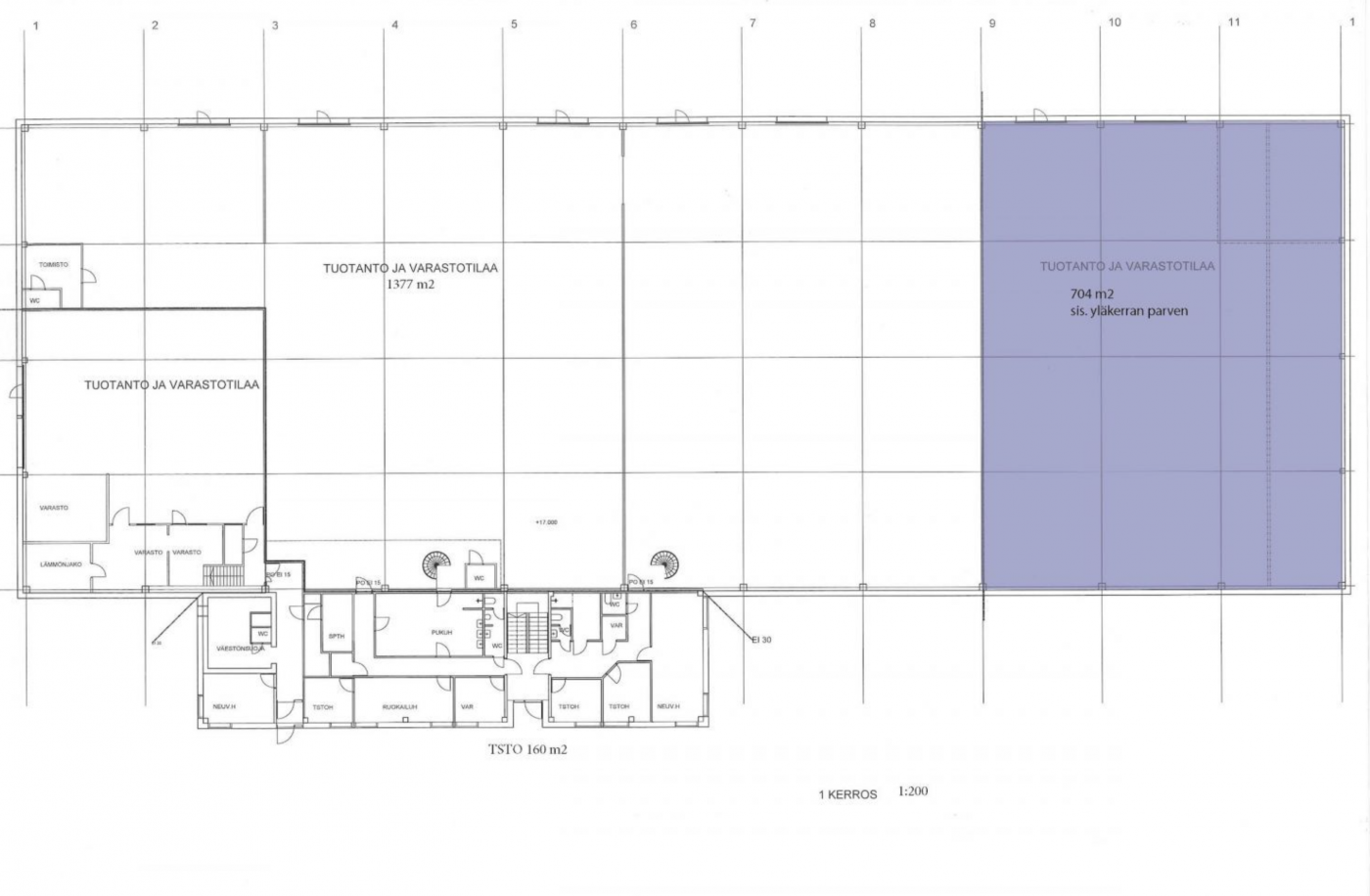
  Vuokrattavana 704 m² varastointi- ja tuotantotila Turun Peltolassa osoitteessa Kaurakatu 48, Turku. Tilakokonaisuuteen kuuluu korkea hallitila sekä yläkerran parvitilan toimistohuoneet, joissa on myös keittiö. Tilaan on oma sisäänkäynti ja kaksi nosto-ovea. Ensimmäiseen kerrokseen on pohjakuvasta poiketen rakennettu suihku-, sauna- ja pukuhuonetilat. Huonejakoa on mahdollista muokata käyttäjän tarpeisiin sopivaksi. Tila heti vapaa Rakennuksen seinustalla sijaitsevat tilaan kuuluvat autopaikat. Lisää toimitiloja www.rhg.fi Peltolan teollisuusalue sijaitsee erinomaisella paikalla Turun eteläosassa. Kiinteistö on aivan Uudenmaantien tuntumassa, ja Skanssin kauppakeskus sekä Helsingin valtatie ovat vain lyhyen matkan päässä.  

  Navigoi kohteeseen
Sauna Ei saunaa

Tony Rosenblad
Hallituksen puheenjohtaja
  +358 50 551 5375
  Lähetä viesti

Haluatko lisätietoja juuri tästä kohteesta?

Syötä yhteystietosi niin lähetämme lisätietoja!

Kiitos, otamme sinuun pian yhteyttä!