

| Kohdenumero | 12451 |
| Kohdetyyppi | Toimistotila | Sijainti | Veistämönaukio 1-3 |
| Kaupunginosa | |
| Huoneluku | |
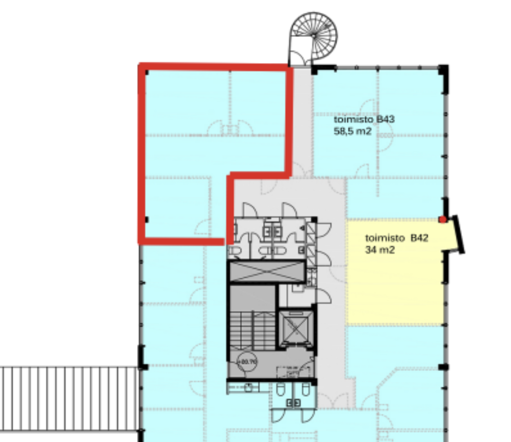
| Pinta-ala | 70,0 m² |
| Lämmitysjärjestelmä | Kaukolämpö |
| Vapautuminen | Vapautuu: 01.05.2025 |
| Vuokra / kk | 0 € |
| Vuokravakuus | Sopimuksen mukaan |
| Sopimustyyppi | Toistaiseksi |
Vuokrataan toimistotilaa Veistämönaukion kupeesta. Kiinteistö sijaitsee Turun keskustan ja sataman välissä. Kiinteistö Oy Turun Pakkarinpuisto sijaitsee erinomaisella paikalla Veistämönaukiolla, aivan Aurajoen rannalla. Vuonna 1996 valmistunut kiinteistö koostuu kahdesta modernista toimistotornista, jotka tarjoavat arvokkaat tilat ja palvelut kaiken kokoisille yrityksille. Talon palveluihin kuuluu aulapalvelu, henkilöstöravintola sekä yhteiskäytössä olevat neuvottelutilat. Lisäksi kiinteistössä on oma pysäköintihalli ja hyvät julkiset liikenneyhteydet, jotka takaavat helpon pääsyn tiloihin. Ympäristössä on myös ilmaisia pysäköintipaikkoja. Vuokrattava tila käsittää kolme huonetta. Wc- ja keittiötilat ovat yhteiskäytössä. Vuokrattavana useampia eri tilakokonaisuuksia. Kysy lisätietoja.
| Keittiö | Yhteiskäytössä käytävällä |
| WC-tilat | Yhteikäytössä |
| Sauna | Ei saunaa |
| Nimi | Kiinteistö Oy Turun Pakkarinpuisto |
| Rakennusvuosi | 1996 |
| Lämmitysjärjestelmä | Kaukolämpö |
| Talossa hissi | Ei |
| Tontin omistus | Oma |
| Energialuokka | E2013 |
Juho Viljanen
LKV
040 741 7522
Lähetä viesti