Valokaari 10, 00750 Helsinki

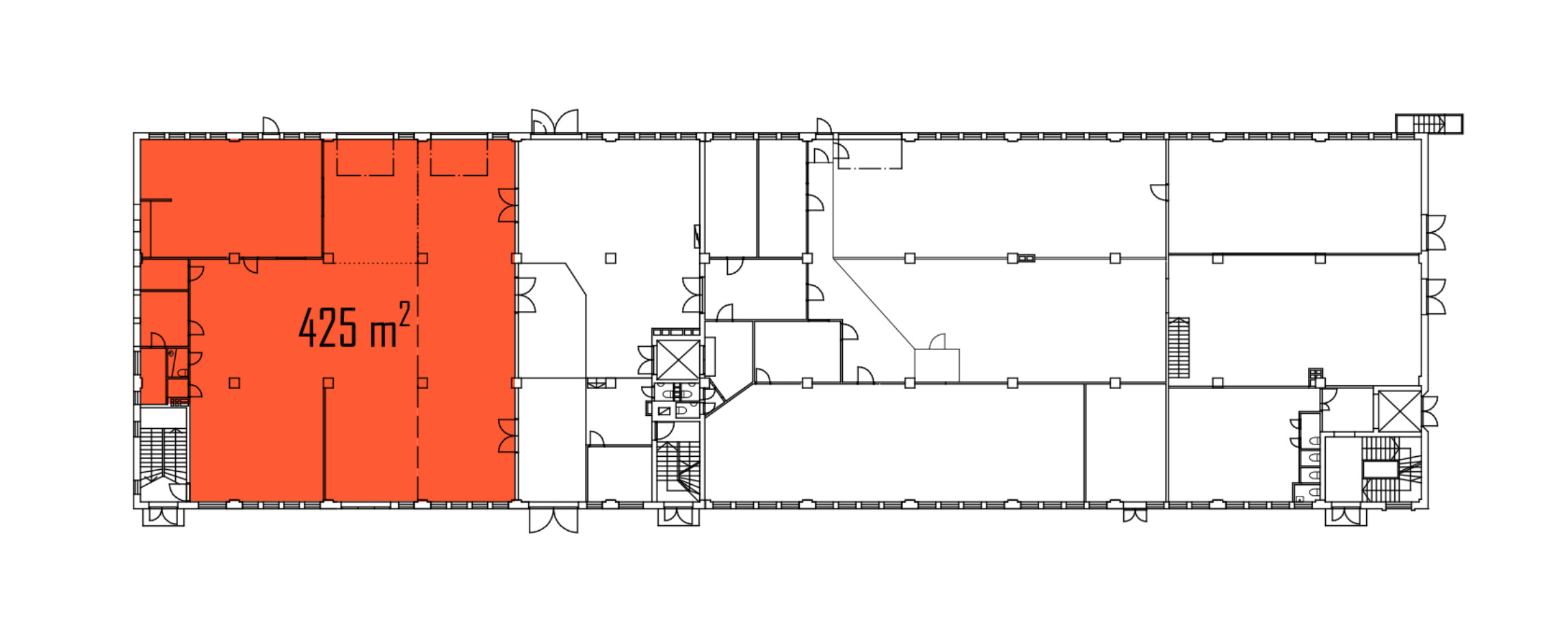
Tuotantotila, 425 m²

0 € / kk

0 € / kk

Suutarila

Perustiedot

Kohdenumero 12447
Kohdetyyppi Tuotantotila
Sijainti Valokaari 10
Kaupunginosa Suutarila
Huoneluku
Pinta-ala 425,0 m²
Vapautuminen Heti vapaa
Vuokra / kk 0 €
SopimustyyppiToistaiseksi
Video

  Vuokrataan perinteikkäästä teollisuusmiljööstä läpiajettava katutason tuotanto- tai varastotila 425 m². Tiloissa on toiminut pitkään autopalvelualan yritys, mutta tila ei sovellu autopesulaksi. Tilan korkeus on noin 3 m ja sinne johtaa pihalta kaksi omaa nosto-ovea ja taitto-ovi. Mainio keittiö. Aulassa hauska ruutulattia, sopii esim. asiakkaiden vastaanottamiseen. Pohjapiirrokseen katkoviivalla merkitty kevyt väliseinä voidaan purkaa tarvittaessa. Sijainti on tunnettu ja hyvä. Pääkaupunkiseudun selkärangalle, Kehä 3:lle, on alle kilometri, Helsinki-Vantaan lentoasemalle alle 10 kilometriä ja Vuosaaren satamaan vain hieman reilu 10 km. Kysy lisää: jouko.raitanen@rhg.fi/0504695444  

  Navigoi kohteeseen
Sauna Ei saunaa

Jouko Raitanen

  050 469 5444
  Lähetä viesti

Haluatko lisätietoja juuri tästä kohteesta?

Syötä yhteystietosi niin lähetämme lisätietoja!

Kiitos, otamme sinuun pian yhteyttä!