









| Kohdenumero | 12430 |
| Kohdetyyppi | Toimistotila | Sijainti | Otsotie 4 |
| Kaupunginosa | |
| Kiinteistötunnus | |
| Huoneluku | |
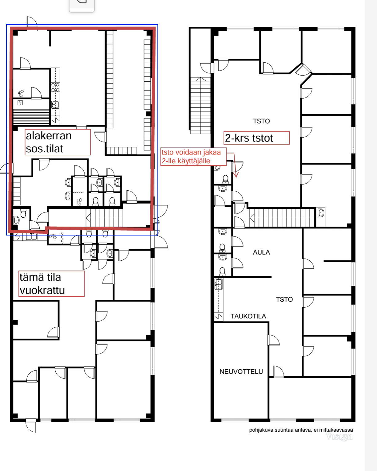
| Pinta-ala | 230,0 m² |
| Tontti | Oma tontti |
| Ranta | Ei valittu |
| Rannan tyyppi | Meri |
| Vapautuminen | Heti vapaa |
| Vuokra / kk | 0 € |
| Sopimustyyppi | Toistaiseksi |
Siistikuntoinen 2. krs toimisto-, työtilaa. Omat wc:t ja keittiö. Voidaan myös jakaa kahdelle käyttäjälle. Parkkipaikkoja on.
| Sauna | Ei saunaa |
| Energiatodistus | Ei lain edellyttämää energiatodistusta |
Risto Taimela
0400 674 900
Lähetä viesti