Keskusta


| Kohdenumero | 12416 |
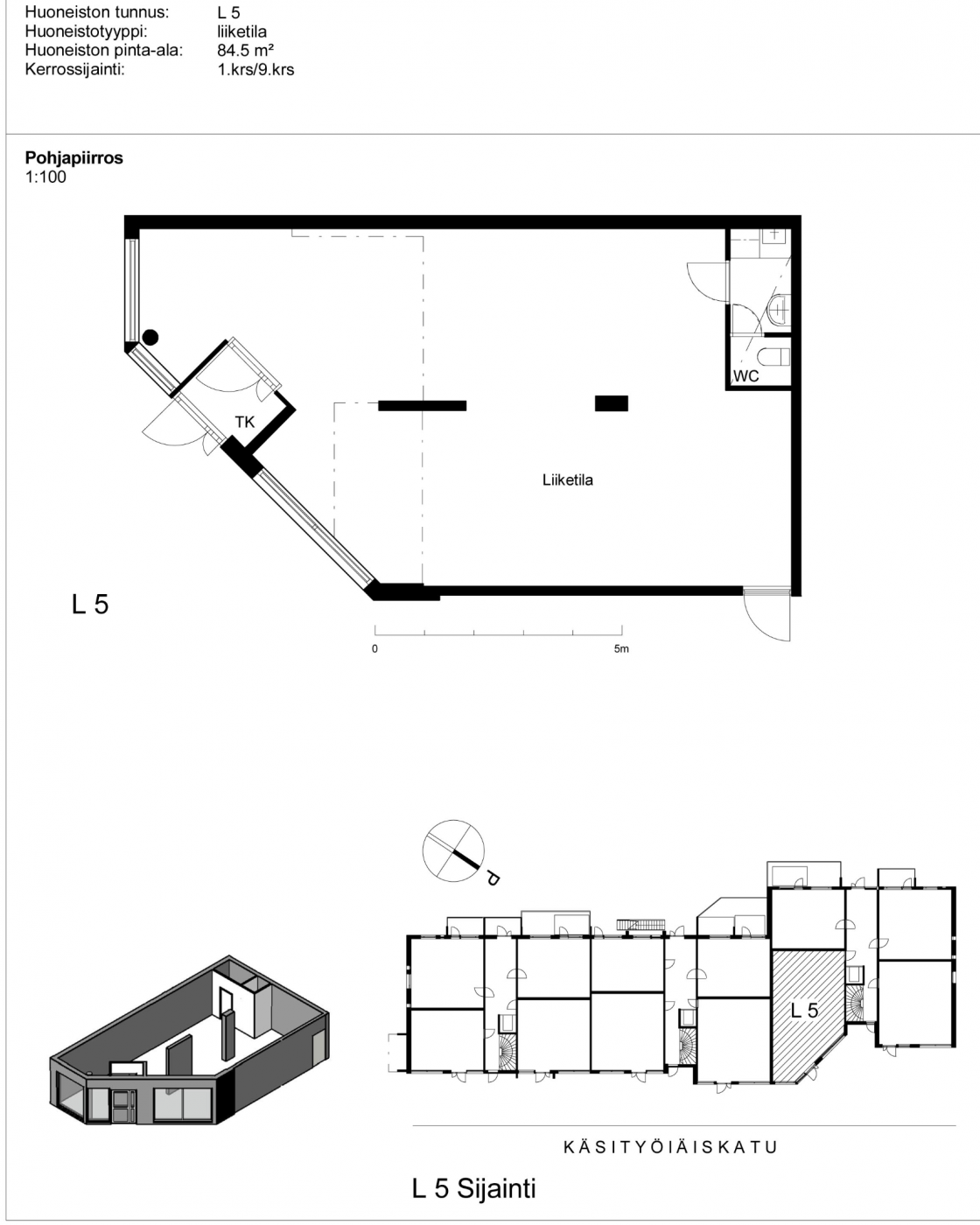
| Kohdetyyppi | Liiketila | Sijainti | Käsityöläiskatu 18 |
| Kaupunginosa | Keskusta |
| Huoneluku | |
| Pinta-ala | 84,5 m² |
| Lämmitysjärjestelmä | Maalämpö |
| Vapautuminen | Heti vapaa |
| Vuokra / kk | 0 € |
| Vuokravakuus | Sopimuksen mukaan |
| Sopimustyyppi | Toistaiseksi |
Katutason liikehuoneisto vuonna 2001 valmistuneen asuintalon kivijalassa. Kiinteistö sijaitsee noin 100 metrin etäisyydellä rautatieasemalta. Ympäristössä runsaasti kivijalkamyymälöitä. Huoneisto on avointa liiketilaa. Heti vapaa. Taloyhtiöllä vuokrattavia autopaikkoja. Pohjakuva suuntaa-antava. Kysy lisätietoja.
| Sauna | Ei saunaa |
| Nimi | Kiinteistö Oy Käsityöläiskatu 18 |
| Rakennusvuosi | 2001 |
| Lämmitysjärjestelmä | Maalämpö |
| Talossa hissi | Ei |
| Tontin omistus | Oma |
| Energialuokka | F2013 |
| Muut maksut | Sähkö, vesi ja alv |
Juho Viljanen
LKV
040 741 7522
Lähetä viesti