



								



								| Kohdenumero | 12411 | 
| Kohdetyyppi | Tuotantotila | Sijainti | Paakarlantie 3 | 
| Kaupunginosa | |
| Kiinteistötunnus | |
| Huoneluku | |
| Pinta-ala | 3 550,0 m² | 
| Tontti | Oma tontti | 
| Ranta | Ei valittu | 
| Rannan tyyppi | Meri | 
| Vapautuminen | Vapautuu sopimuksen mukaan | 
| Vuokra / kk | 0 € | 
| Vuokravakuus | Sopimuksen mukaan | 
| Sopimustyyppi | Toistaiseksi | 
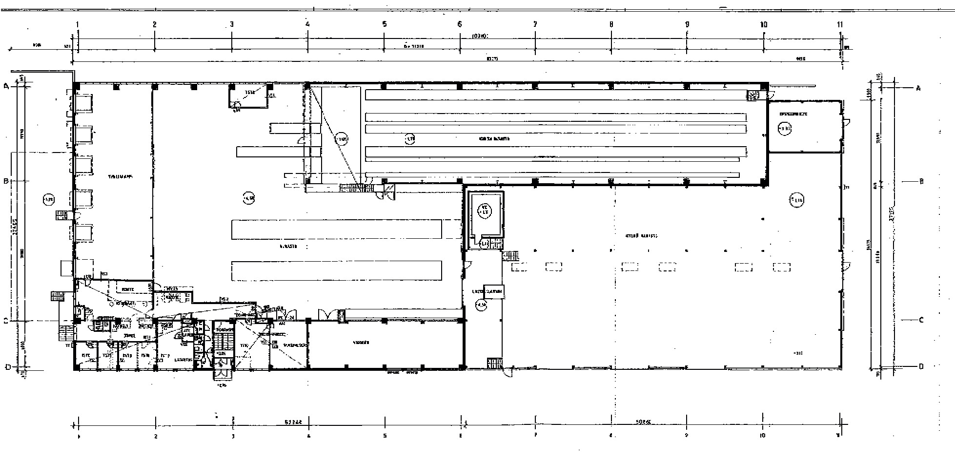
Vuokrattavana 3 550 m² varastokiinteistö Pansiossa, osoitteessa Paakarlantie 3, Turku. Kiinteistön sijainti on erinomainen, lähellä Turun satamaa ja telakkaa. Tilakokonaisuus sisältää varaston lisäksi 1 200 m² kylmää katostilaa. Tiloissa on hyvät lastauslaiturit ja 700 m² kokoisessa varastotilassa on automaattinen robottihissi. Kiinteistössä on myös 120 m² toimistotilaa. Vapautuu sopimuksen mukaan Lisää toimitiloja: [www.rhg.fi](http://www.rhg.fi)
| Sauna | Ei saunaa | 
| Energiatodistus | Ei lain edellyttämää energiatodistusta | 
								
								Tony Rosenblad
								Hallituksen puheenjohtaja
								
								  +358 50 551 5375								
								  Lähetä viesti