

| Kohdenumero | 12384 |
| Kohdetyyppi | Toimistotila | Sijainti | Raisionkaari 50 |
| Kaupunginosa | |
| Huoneluku | |
| Pinta-ala | 116,0 m² |
| Ranta | Ei valittu |
| Rannan tyyppi | Meri |
| Vapautuminen | Heti vapaa |
| Vuokra / kk | 0 € |
| Vuokravakuus | Sopimuksen mukaan |
| Sopimustyyppi | Toistaiseksi |
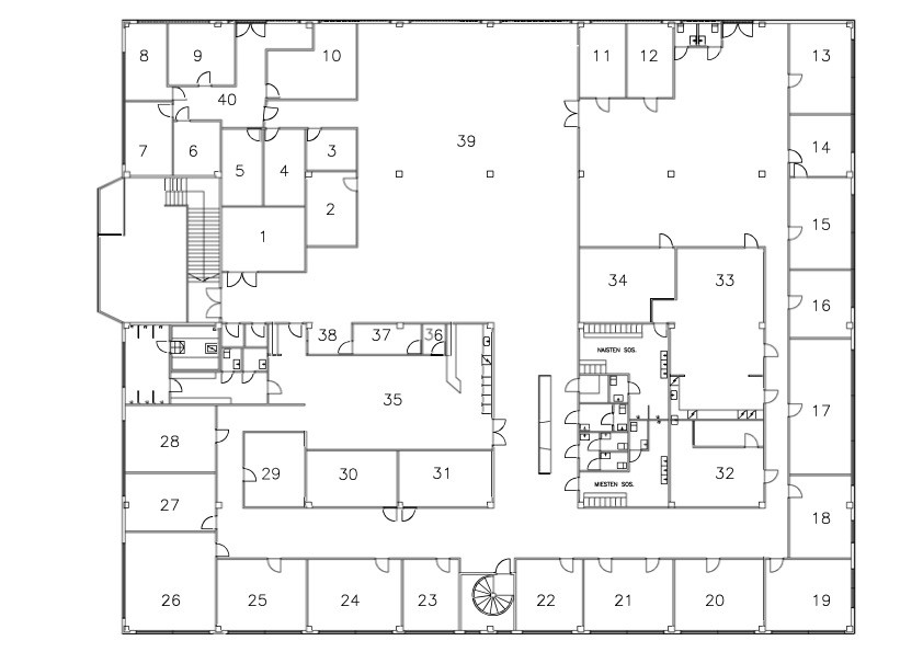
Vuokrattavana business tyylinen 116m2 toimistohuoneisto osoitteessa Raisionkaari 50, Raisio. Oma tilakokonaisuus jossa aulan lisäksi 6 huonetta. Huoneiden määrä voi lisätä tarpeen mukaan. Keittiö ja wc-tilat yhteiskäytössä. Pohjakuvassa huoneet nro 5,6,7,8,9 ja 10. Kysy lisätietoja. Lisää toimisto tiloja www.rhg.fi Kohteella ei ole lain edellyttämää energiatodistusta ja sen vuoksi energialuokka ei ole tiedossa
| Sauna | Ei saunaa |
Tony Rosenblad
Hallituksen puheenjohtaja
+358 50 551 5375
Lähetä viesti