Askola






| Kohdenumero | 12379 |
| Kohdetyyppi | Tuotantotila | Sijainti | Teollisuustie 2 |
| Kaupunginosa | Askola |
| Kiinteistötunnus | |
| Huoneluku | |
| Pinta-ala | 2 250,0 m² |
| Tontti | Oma tontti |
| Ranta | Ei valittu |
| Rannan tyyppi | Meri |
| Vapautuminen | Vapautuu sopimuksen mukaan |
| Vuokra / kk | 8 212,50 € |
| Sopimustyyppi | Toistaiseksi |
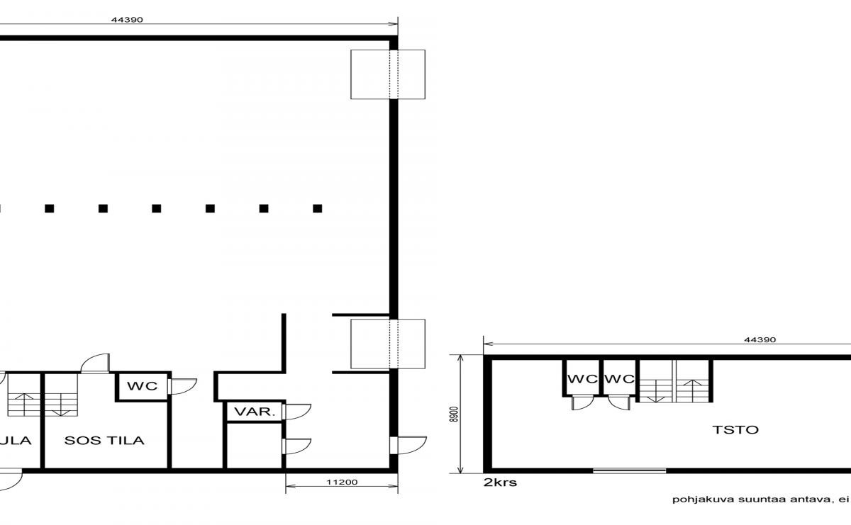
Askolassa monipuolista tuotanto-, varasto-, toimistotilaa yht. 2250 m2. Tilassa toiminut aiemmin kalustetehdas. Hallin koko n 1500 m2, korkeus n 4,4 m, 2 x nosto-ovi n 4,3 x 4,2 m. 1. krs matalaa tuotantotilaa n 2,9 m sekä sos.tilat. 2. krs toimistoa. Edullinen lämmityskulu vesi-ilmalämpöpumpuilla ja öljy varalla. Tämä on pääomavuokraus (3,65 €/m2). Lisäksi kulut maksaa vuokralainen esim sähkö, lämpö, vesi, puhtaanapito.
| Sauna | Ei saunaa |
| Energiatodistus | Ei lain edellyttämää energiatodistusta |
Risto Taimela
0400 674 900
Lähetä viesti