Kuljuntie 1, 21410 Lieto

Varasto, 889 m²

mh. 790 000 €

mh. 790 000 €

Perustiedot

Kohdenumero 12361
Kohdetyyppi Varasto
Sijainti Kuljuntie 1
Kaupunginosa
Kiinteistötunnus423-428-3-399
Huoneluku
Pinta-ala 889,0 m²
Kerrosmäärä1
Tontin pinta-ala 2 988,0 m²
Tontti Oma tontti
Lämmitysjärjestelmä sähkö
Ranta Ei valittu
Rannan tyyppi Meri
Vapautuminen Sopimuksen mukaan
Neliöhinta 888,63 €
Myyntihinta 790 000 €
Video

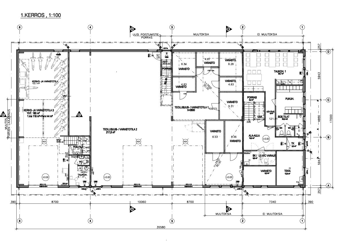
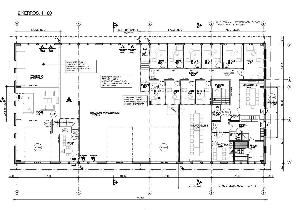
  Myydään kiinteistömuotoisena toimitilakiinteistö Liedon Avantin yritysalueelta, osoitteessa Kuljuntie 1, Lieto. Kiinteistöllä sijaitsee vuonna 2013 valmistunut 889 k-m2 toimisto- ja varastorakennus. Kiinteistö sijaitsee Avantissa näkyvällä paikalla ja Turun kehätien (E18) liittymä on muutaman sadan metrin päässä. Matkaa kohteesta on Turun keskustaan 12 km, Helsinkiin 150 km ja Tampereelle 165 km. Tuulissuo ja Avanti ovat Turun alueen yksi vetovoimaisemmista yrityskeskittymistä. Alueella on suhteellisen uusi toimitilakanta ja ympäristössä toimii pääasiassa logistiikan tiloja ja runsaasti B2B-yritystoimintaa. Alueen vetovoima on kasvanut tasaisesti 2000-luvulla. Uutta toimitilakantaa on alueella jatkuvasti rakenteilla. Kohteen tuntumassa sijaitsevat esimerkiksi Postin logistiikkakeskus, Inex Partners Oy, Kesko Oyj, DP Schenker Oy, UPS Turku, VAK Huoltopalvelut Oy, Volvo Trucks Oy, Puuilo Oyj ja Renault Trucks Oy. Rakennus Kiinteistöllä sijaitsee vuonna 2013 valmistunut toimisto- ja varastorakennus. Rakennuksen kerrosala on 889 kem² ja huoneistoala 842 m2. Tilat jakaantuvat: katutason tilat 575m2, 2.krs toimisto 244m2 ja 2. krs kerhotila 43m2 Hallitilojen vapaa korkeus on noin 6 metriä, ja ne on varustettu kolmella 5 metrin korkuisella ja 3,5 metrin leveällä nosto-ovella. Hallissa on hiekan- ja öljynerottimilla varustettuja lattiakaivoja yhteensä 3 kpl. Toimisto-osan yläkerrassa sijaitsee kymmenen toimistohuonetta, saunaosasto ja keittiö. Lisäksi tiloissa on kaksi neuvotteluhuonetta. Alakerrassa sijaitsee sosiaalitiloja, taukotila, teknisiä tiloja sekä varastotila. Lämmitysmuotona on suora sähkölämmitys. Kiinteistössä on koneellinen ilmanvaihto, toimiston puolella on jäähdytys. Rakennuksen alapohjana on TB-laatta. Kantavana pystyrakenteena ovat liimapuupilarit ja -palkit. Ulkoseinät ovat puurunkoiset ja niiden ulkoverhoiluna on pelti. Välipohjaa kantavat teräspilarit ja -palkit ja sen rakenteena on ontelolaattaa. Katto on peltikatteinen harjakatto. Tontti Omistustontin pinta-ala on 2.988 m2. Tontti on kauttaaltaan asfaltoitu. Tontin rakennusoikeus on käytetty. Kaava Kaavamerkintä: KTY = Toimitilarakennusten korttelialue. KTY-korttelialueille saa rakentaa asuntoja alueen tai kiinteistön hoidon ja valvonnan kannalta tarpeellista henkilökuntaa varten, kuitenkin enintään yhden asunnon rakennuspaikkaa kohti. Asemakaavan mukainen rakennusoikeus kiinteistöllä on 896 k-m2. Myyntihinta: Velaton hinta 790 000 euroa Vapautuu sopimuksen mukaan. Osapuolet voivat myös sopia, että myyjä jää kiinteistöön kahden vuoden määräaikaisella pääomavuokrasopimuksella, jos ostaja niin haluaa. Kysyy lisätietoja   

  Navigoi kohteeseen
Sauna Oma sauna
Rakennusvuosi 2013
Energiatodistus Ei lain edellyttämää energiatodistusta
Lämmitysjärjestelmä sähkö
Rakennusmateriaali Kantavana pystyrakenteena ovat liimapuupilarit ja -palkit. Ulkoseinät ovat puurunkoiset ,ulkoverhoiluna on pelti
Energiankulutus 70000 kwh/ vuosi
Kiinteistövero 2 524,09 € / v

Tony Rosenblad
Hallituksen puheenjohtaja
  +358 50 551 5375
  Lähetä viesti

Haluatko lisätietoja juuri tästä kohteesta?

Syötä yhteystietosi niin lähetämme lisätietoja!

Kiitos, otamme sinuun pian yhteyttä!