Isosuontie 18, 21250 Masku

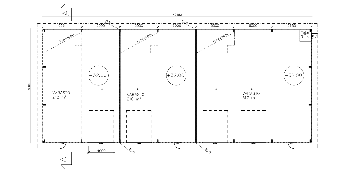
Varasto, 317 m², Hallitila

2 536 € / kk

2 536 € / kk

Perustiedot

Kohdenumero 12334
Kohdetyyppi Varasto
Sijainti Isosuontie 18
Kaupunginosa
Kiinteistötunnus
Huoneluku Hallitila
Pinta-ala 317,0 m²
Tontti Oma tontti
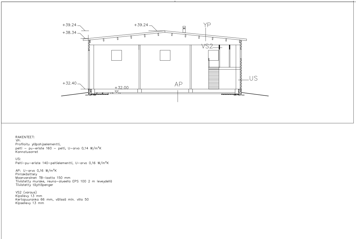
Lämmitysjärjestelmä Maalämpö
Ranta Ei valittu
Rannan tyyppi Meri
Vapautuminen Heti vapaa
Vuokra / kk 2 536 €
VuokravakuusSopimuksen mukaan
SopimustyyppiToistaiseksi
Video

  Uutta, elokuussa 2025 valmistunutta hallitilaa Maskun ja Raision rajalla. Rakennuksen pinta-ala on 760 m², joka on jaettavissa kolmeen osaan (noin 200 m2 ja 300 m2 hallit). Hallin huoneistoala on 748 m2. Hallin sisäkorkeus on 6 metriä. Hallissa on 4 metriä leveät 5 metriä korkeat sähkökäyttöiset nosto-ovet. Lämmitysmuotona on maalämpö lattialämmityksellä, ja lattiakaivot on varustettu öljynerotuksella. Tiloissa on varaus parvirakentamiselle. Kiinteistö sijaitsee Kustavintien ja Isosuontien risteyksessä lähellä Rauman valtatietä (E8). Iso ja kovapohjainen piha soveltuu hyvin raskaalle kalustolle. Viereinen noin 1 hehtaarin tontti on mahdollista vuokrata vaikka kaluston säilytykseen. Vuokrattavana olevan hallin edustallakin on hyvin tilaa kalustolle. Vuokra 7,50 - 8,00 €/m2 riippuen vuokrattavasta pinta-alasta. Vuokra sisältää lämmityksen. Sähkö, vesi ja alv lisätään vuokraan. Kuvista puuttuu vielä tiloja jakavat seinät. Halli osto on myös mahdollista.   

  Navigoi kohteeseen
Sauna Ei saunaa
Rakennusvuosi 2025
Energiatodistus Ei lain edellyttämää energiatodistusta
Lämmitysjärjestelmä Maalämpö

Juho Viljanen
LKV
  040 741 7522
  Lähetä viesti

Haluatko lisätietoja juuri tästä kohteesta?

Syötä yhteystietosi niin lähetämme lisätietoja!

Kiitos, otamme sinuun pian yhteyttä!