


								


								| Kohdenumero | 12203 | 
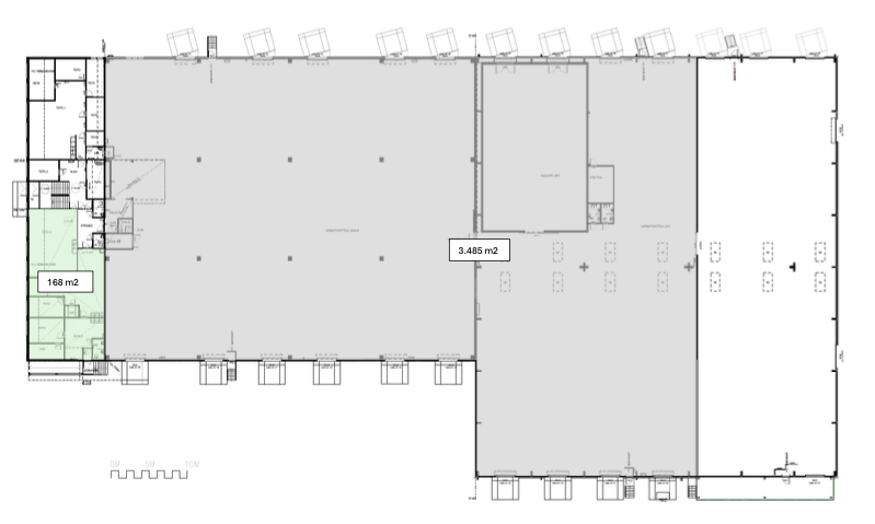
| Kohdetyyppi | Varasto | Sijainti | Niittyhaantie 21 | 
| Kaupunginosa | |
| Kiinteistötunnus | |
| Huoneluku | |
| Pinta-ala | 3 485,0 m² | 
| Tontti | Oma tontti | 
| Ranta | Ei valittu | 
| Rannan tyyppi | Meri | 
| Vapautuminen | Heti vapaa | 
| Vuokra / kk | 0 € | 
| Sopimustyyppi | Toistaiseksi | 
Hervannan Ruskossa vuokrattavissa kylmää logistiikkatilaa. Tilat ovat eriasteisia ja pakastintilat ovat erikseen. Kiinteistössä on useampia lastaustaskuja ja läpivirtausterminaaleja. Kiinteistön yhteydessä on myös toimisto- ja sosiaalitilat. Vapaa korkeus n. 7-8 m. Iso aidattu tontti. Käyttämätöntä rakennusoikeutta. Lisätiedot: 045 610 2752 tai mikko.wallgren@rhg.fi Lisää kohteita www.rhg.fi
| Sauna | Ei saunaa | 
| Energiatodistus | Ei lain edellyttämää energiatodistusta | 
								
								Mikko Wallgren
								Työntekijä
								
								  045 6102 752								
								  Lähetä viesti