

















| Kohdenumero | 12167 |
| Kohdetyyppi | Toimistotila | Sijainti | Finnoonniitty 7 |
| Kaupunginosa | Suomenoja |
| Huoneluku | |
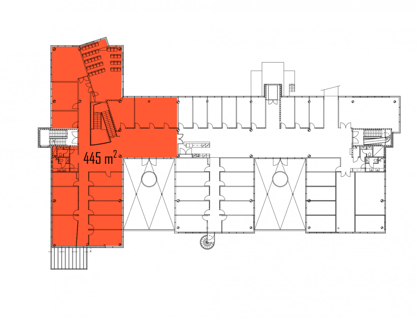
| Pinta-ala | 445,0 m² |
| Vapautuminen | Heti vapaa |
| Vuokra / kk | 0 € |
| Sopimustyyppi | Toistaiseksi |
Vuokrataan moderni noin 445 m²:n toimistotila näyttävän toimitilarakennuksen 2. kerroksessa. Tilassa on 12 toimistohuonetta ja kaksi avaraa neuvotteluhuonetta, jotka tarjoavat erinomaiset puitteet tehokkaalle työskentelylle. Keittiö on yhteiskäytössä, ja toimistotilaan pääsee helposti joko portaita tai tavarahissiä pitkin. Lisämukavuutta tuo mahdollisuus vuokrata kattosauna. Pysäköintitilaa on runsaasti sekä pihalla että parkkihallissa. 1990-luvulla rakennettu kiinteistökokonaisuus sijaitsee Suomenojan kehittyvällä alueella muutaman kilometrin päässä uudelta Finnoon metroasemalta Espoon keskustaan päin. Saavutettavuus Länsiväylän kainalossa on loistava. Arkkitehtuurisesti vaikuttava kiinteistö on rakennettu IT-yrityksen pääkonttoriksi. Kiinteistön energiatehokkuutta on kehitetty viime vuosina ja ympäristöystävälliseen suuntaan edetään jatkossakin. Kysy lisää: jouko.raitanen@rhg.fi/0504695444
| Sauna | Ei saunaa |
Jouko Raitanen
050 469 5444
Lähetä viesti