Viestitie 4, 21100 Naantali

Tuotantotila, 1400 m²

0 € / kk

0 € / kk

Perustiedot

Kohdenumero 12136
Kohdetyyppi Tuotantotila
Sijainti Viestitie 4
Kaupunginosa
Kiinteistötunnus
Huoneluku
Pinta-ala 1 400,0 m²
Tontti Oma tontti
Ranta Ei valittu
Rannan tyyppi Meri
Vapautuminen Vapautuu sopimuksen mukaan
Vuokra / kk 0 €
SopimustyyppiToistaiseksi
Video

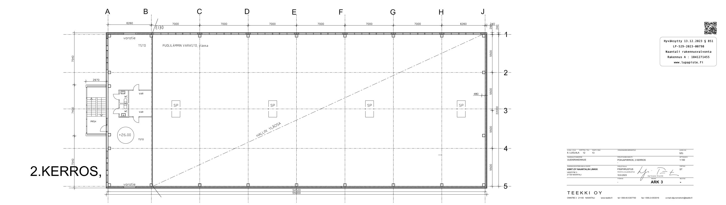
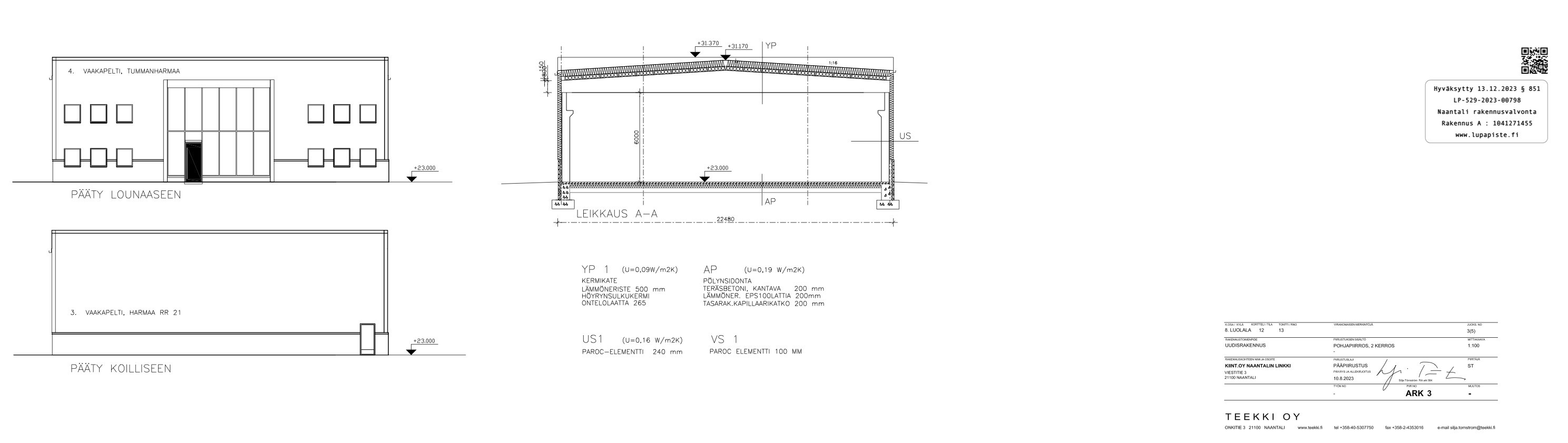
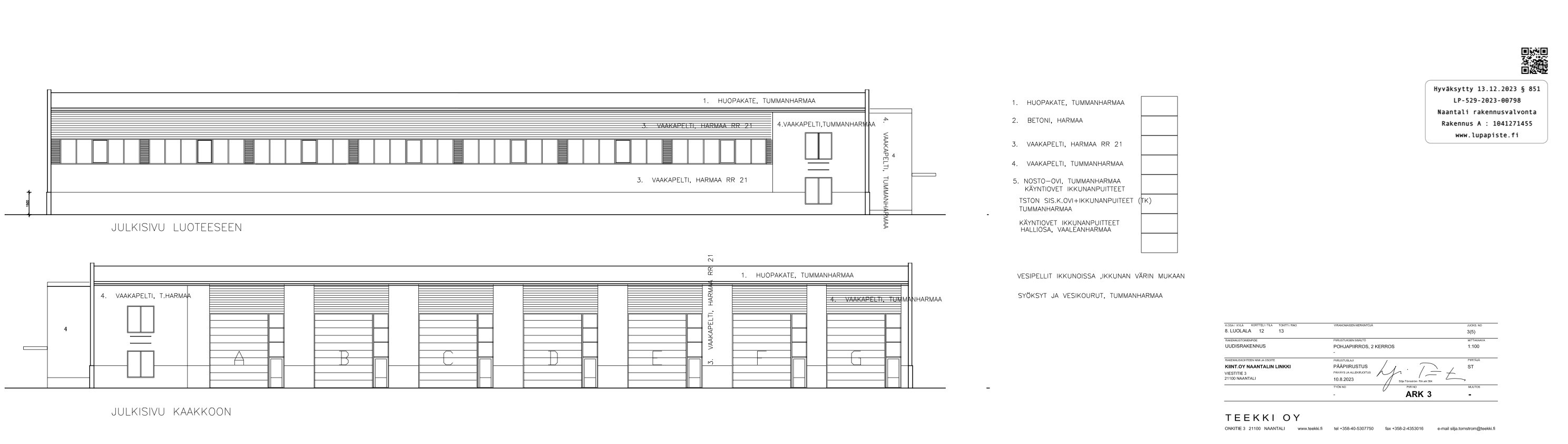
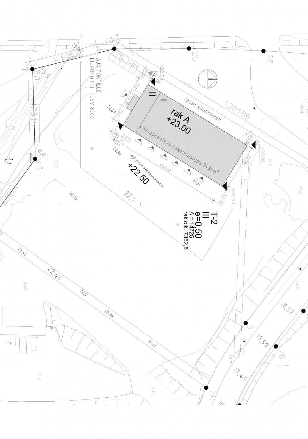
  Vuokrattavana 1 400 m² toimitilat Naantalin Luolalan teollisuusalueella, osoitteessa Viestitie 4, Naantali. Tontille rakennetaan korkealuokkainen tuotantohalli, jossa tuotantotilat ovat 1 100 m² ja toimiston osuus 300 m². Tilat räätälöidään tulevan käyttäjän tarpeisiin. Tontilla on suuri rakennusoikeus, joten tarvittaessa rakennuslupa voidaan saada nopeasti, jos tilantarve on tätä suurempi. Kiinteistön sijainti on Naantalin sataman välittömässä läheisyydessä. Tontti rajoittuu uuden TEN-T-verkoston satamaan johtavaan tiehen Ota yhteyttä, niin suunnitellaan yhdessä teidän tulevat toimitilat! Tässä vaiheessa pääsette vaikuttamaan tulevien tilojen layoutiin ja varusteluun. - Tontin pinta-ala: 14 725 m² - Rakennusoikeus: 7 362 k-m² - Kaavoitus: T-2 III (teollisuus- ja varastorakennusten korttelialue) - Kiinteistötunnus: 529-8-12-12 Lisää toimitiloja www.rhg.fi  

  Navigoi kohteeseen
Sauna Ei saunaa
Energiatodistus Ei lain edellyttämää energiatodistusta

Tony Rosenblad
Hallituksen puheenjohtaja
  +358 50 551 5375
  Lähetä viesti

Haluatko lisätietoja juuri tästä kohteesta?

Syötä yhteystietosi niin lähetämme lisätietoja!

Kiitos, otamme sinuun pian yhteyttä!