



















| Kohdenumero | 12040 |
| Kohdetyyppi | Toimistotila | Sijainti | Läntinen Rantakatu 23 |
| Kaupunginosa | Ydinkeskusta |
| Kiinteistötunnus | |
| Huoneluku | Toimistohuoneisto |
| Pinta-ala | 230,0 m² |
| Kerrosmäärä | 2 |
| Tontti | Oma tontti |
| Ranta | Ei valittu |
| Rannan tyyppi | Meri |
| Vapautuminen | Heti vapaa |
| Vuokra / kk | 4 500 € |
| Vuokravakuus | Sopimuksen mukaan |
| Sopimustyyppi | Toistaiseksi |
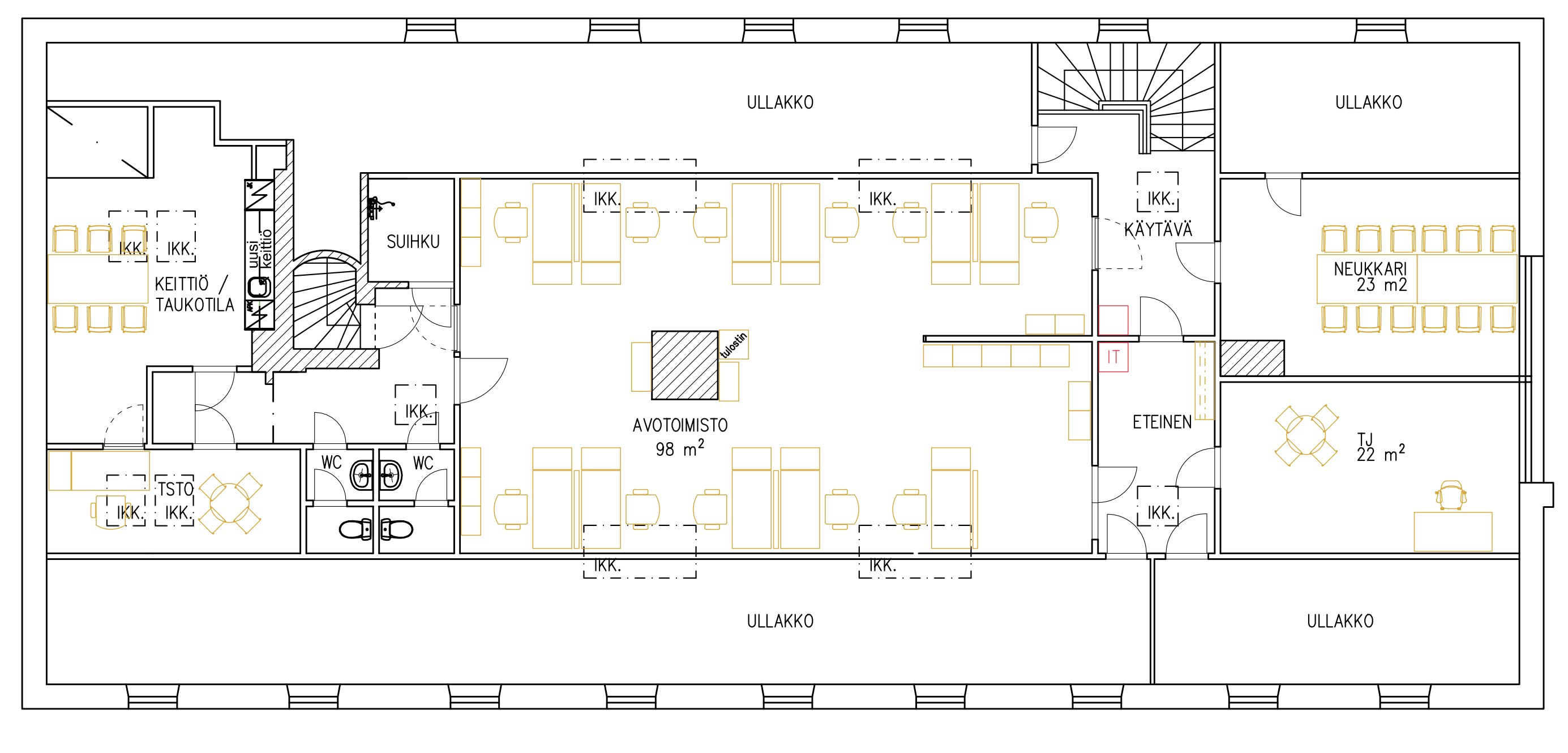
Vuokrattavan uniikki toimistotila Aurajoen rannalta Herrainkulmana tunnetulta kiinteistöltä. Tonttien 1600-luvulta alkava historia on kiehtova osa Turun historiaa, ja tontit ovat tunnettu satojen vuosien ajalta eri käyttötarkoituksissa. Tontilla on aikanaan toiminut niin verkatehdas, kasarmi kuin palokunta. Rakennuksen sijainti Turun ydinkeskustassa Aurajoen rannalla on täysin ainutlaatuinen. Rakennuksessa on pyritty säilyttämään rakennuksen alkuperäistä henkeä unohtamatta nykyaikaisia tilavaatimuksia. Rakennus tiloineen on saneerattu noin vuosi sitten täysin vastaamaan nykyisiä toimistovaatimuksia. Suurin osa tiloista on avotyötilaa, jonka lisäksi tiloista löytyy kaksi erillistä työtilaa, pieni hiljainen huone ja keittiö. Tiloissa on myös mahdollisuus suihkutiloille. Tilojen erikoisuutena on aikaisemman käytön aikana tehdyt taideteokset toimiston seinillä, jotka jatkuva läpi huoneiston. Viereisessä rakennuksessa toimii uusi K-Market. Sijainti Aurajoen ja Linnankadun välissä aivan ydinkeskustan tuntumassa ei voisi olla enää parempi.
| WC-tilat | Kaksi wc:tä |
| Kylpyhuone | Erillinen suihkuhuone |
| Sauna | Ei saunaa |
| Auton säilytys | Vuokrattavia autopaikkoja pysäköintihallissa |
| Energiatodistus | Ei lain edellyttämää energiatodistusta |
Juho Viljanen
LKV
040 741 7522
Lähetä viesti