























| Kohdenumero | 11972 |
| Kohdetyyppi | Varasto | Sijainti | Krossinkatu 12 |
| Kaupunginosa | Krossi |
| Huoneluku | Toimitilahuoneisto |
| Pinta-ala | 97,0 m² |
| Lämmitysjärjestelmä | Ilmalämpöpumppu |
| Ranta | Ei valittu |
| Rannan tyyppi | Meri |
| Vapautuminen | Heti vapaa |
| Neliöhinta | 1 443,29 € |
| Hoitovastike | 123,19 € |
| Myyntihinta | 88 840,28 € |
| Velkaosuus | 51 159,72 € |
| Velaton hinta | 140 000 € |
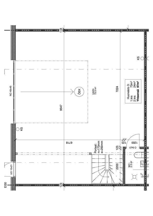
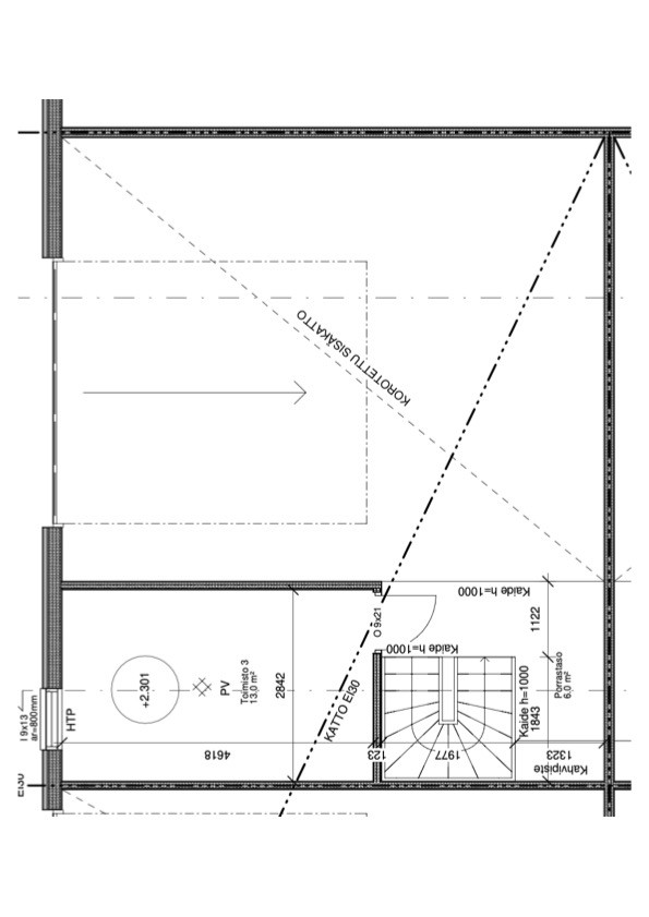
Erittäin tehokkaasti suunniteltu ja monikäyttöinen toimitilahuoneisto Kaarinan Krossista. Rakennus on juuri valmistunut ja tilat etsivät nyt ensimmäistä käyttäjää. Kiinteistö sijaitsee näkyvällä paikalla Krossinkadun varrella. Myytävän huoneiston katutason kerroksessa on 73 m2. Hallitila on varustettu öljyn- ja hiekanerotuskaivolla. Lattiassa on Master-pinnoitus. Seinät ovat 1,2 metrin korkeuteen muovipinnoitettua, veden kestävää vaneria. Toisessa kerroksessa on 24 m2 toimisto- ja keittiötilat. Alakerran wc-tiloissa on myös suihku. Tilat ovat laadukkaasti rakennettu. Huoneistossa on valokuitu ja valmius sähköauton latausasemalle. Tiloissa on ilmalämpöpumppu ja koneellinen ilmanvaihto lämmön talteenotolla. Nosto-ovi toimii sähköisesti. Lisäksi piha-alueella on tallentava kameravalvonta. Huoneistoon kuuluu kaksi autopaikkaa. Yhtiössä on erittäin edullinen hoitovastike 123,19 €/kk sis. alv 25,5 % (hoitovastikearvio 1,27 €/m2 sis. alv 25,5 %). Huoneistoon on mahdollista jättää yhtiölainaa noin 51 000,00 €. Tarkemmat tiedot yhtiövastikkeista saa välittäjältä. Katso kohteen esittelyvideo https://www.youtube.com/watch?v=YneFpDuZLpA
| Keittiö | Yläkerrassa keittokomero, jääkaappi |
| WC-tilat | Wc-tila suihkulla |
| Kylpyhuoneen lattia | laatta |
| Kylpyhuoneen seinät | laatta |
| Sauna | Ei saunaa |
| Nimi | Kiinteistö Oy Kaarinan Krossinkatu 12 |
| Rakennusvuosi | 2024 |
| Lämmitysjärjestelmä | Ilmalämpöpumppu |
| Kerroksia | 2 |
| Talossa hissi | Ei |
| Tontin omistus | Oma |
| Energialuokka | B |
| Hoitovastike | 123,19 € / kk |
| Rahoitusvastike | 569,52 € / kk |
| Yhtiövastike | 692,71 € / kk |
| Lisätietoja vesimaksusta | Kulutuksen mukaan |
| Muut maksut | Hoitovastike sisältää 25,03 € arvonlisäveroa, joka on vähennettävissä. |
Juho Viljanen
LKV
040 741 7522
Lähetä viesti