Radiomiehenkatu 3, 20320 Turku

Tuotantotila, 2732 m²

0 € / kk

0 € / kk

Mälikkälä

Perustiedot

Kohdenumero 11950
Kohdetyyppi Tuotantotila
Sijainti Radiomiehenkatu 3
Kaupunginosa Mälikkälä
Huoneluku
Pinta-ala 2 732,0 m²
Vapautuminen Vapautuu sopimuksen mukaan
Vuokra / kk 0 €
SopimustyyppiToistaiseksi
Video

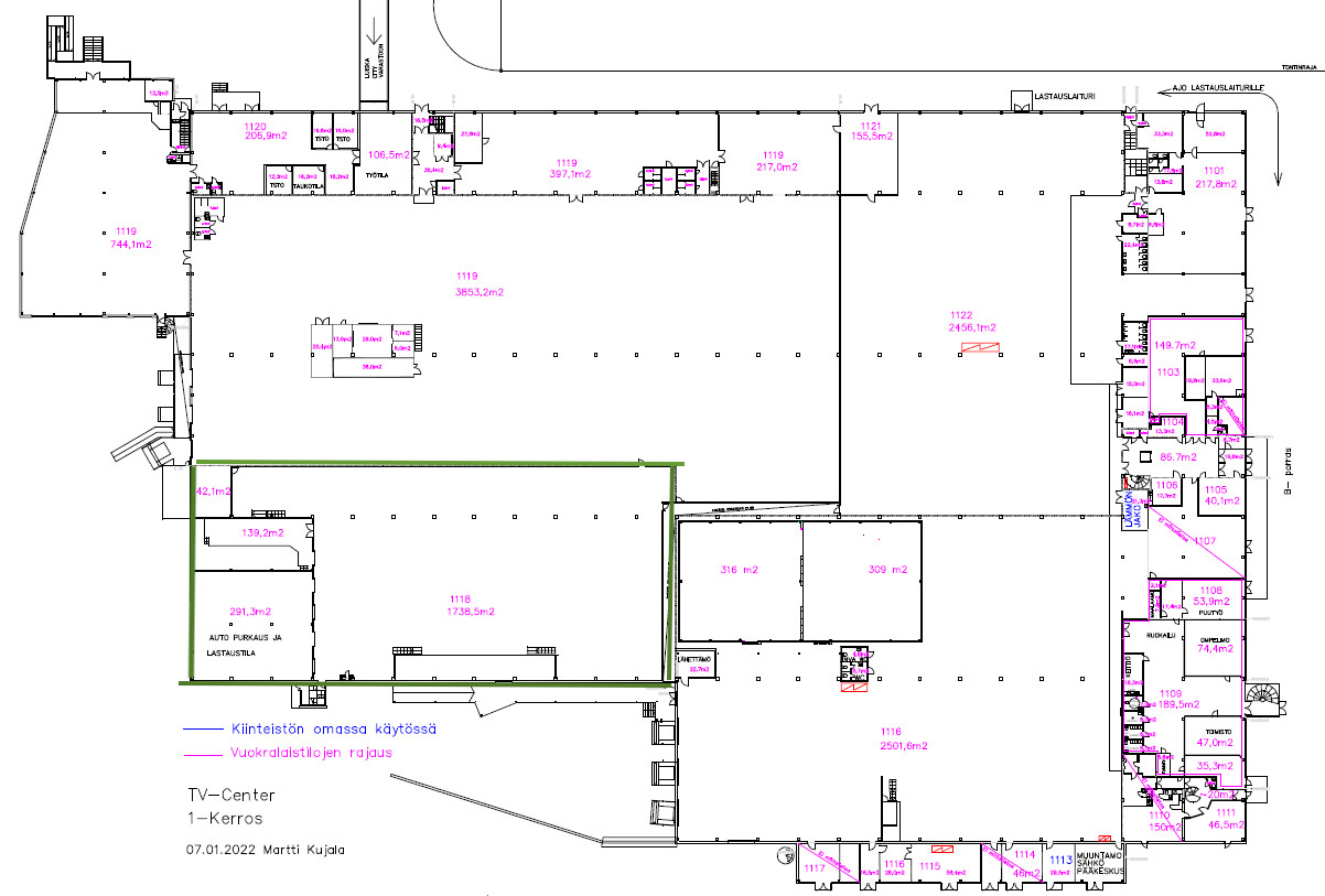
  Vuokrattavana 2 732 m² varasto- ja logistiikkatila TV-Centerissä, osoitteessa Radiomiehenkatu 3, Turku. Tämä 2 732 m² kokoinen tilakokonaisuus sisältää 2 211 m² logistiikkatilan ja 521 m² toimisto- ja sosiaalitilat. Tilassa on katettu lastausalue. Tilan vapaa korkeus on noin 5 metriä. Tila on heti vapaa, Kysy lisätietoja ja tutustu muihin toimitiloihin osoitteessa www.rhg.fi.  

  Navigoi kohteeseen
Sauna Ei saunaa

Tony Rosenblad
Hallituksen puheenjohtaja
  +358 50 551 5375
  Lähetä viesti

Haluatko lisätietoja juuri tästä kohteesta?

Syötä yhteystietosi niin lähetämme lisätietoja!

Kiitos, otamme sinuun pian yhteyttä!