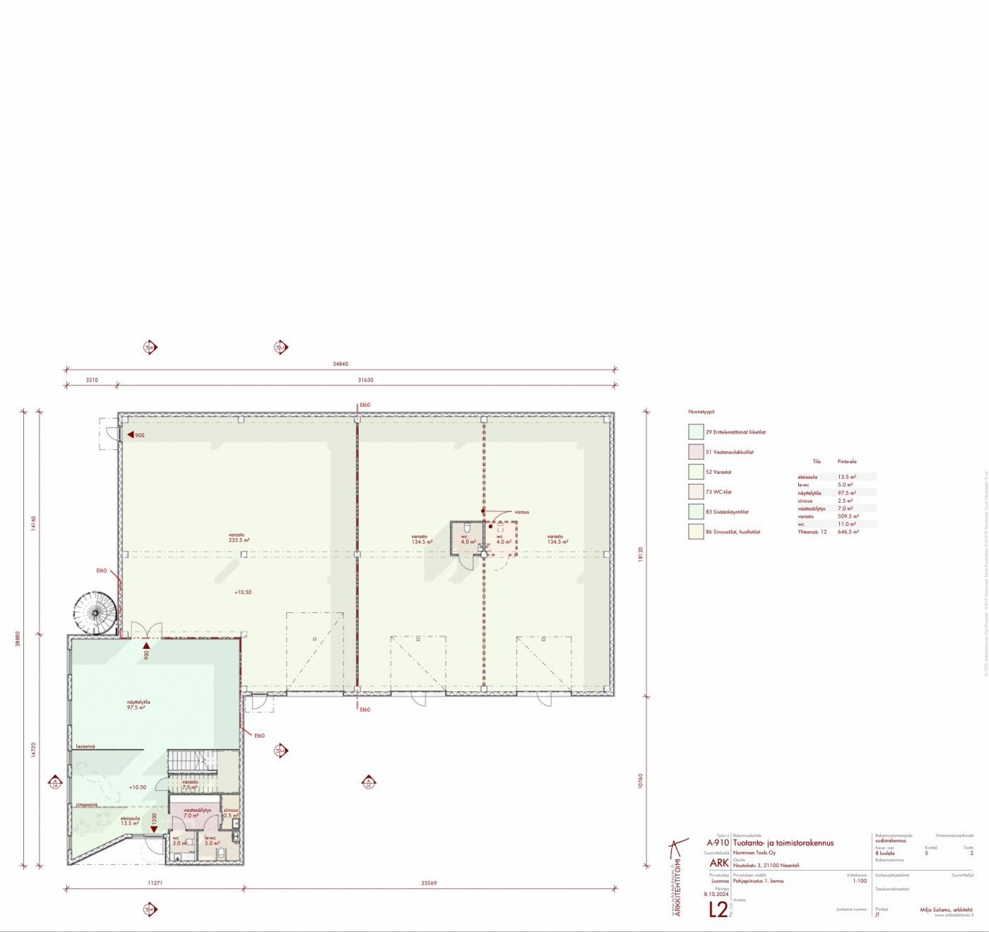
Noutokatu 3, 21100 Naantali

Tuotantotila, 280 m²

3 360 € / kk

3 360 € / kk

Perustiedot

Kohdenumero 11923
Kohdetyyppi Tuotantotila
Sijainti Noutokatu 3
Kaupunginosa
Huoneluku
Pinta-ala 280,0 m²
Ranta Ei valittu
Rannan tyyppi Meri
Vapautuminen Vapautuu sopimuksen mukaan
Vuokra / kk 3 360 €
SopimustyyppiToistaiseksi
Video

  Vuokrattavana n. 280m2 tuotantotila Luolalan teollisuusalueella, osoitteessa Noutokatu 3, Naantali. Uudiskohde, joka valmistuu syksyn 2025 aikana. Hallin vapaa korkeus 5 metriä. Vielä voit vaikuttaa lopulliseen lay-outiin, mm. tilaan mahdollista rakentaa tarvittaessa toimistoparvi. Kiinteistön seinärakenne Parocin 240 mm pelti-villa-pelti elementti. Tilassa lattialämmitys sekä lattiakaivot. Kahdet nosto-ovet. Kiinteistön lämmitysmuoto on maalämpö ja keskitetty koneellinen lämmön talteen ottava ilmanvaihtojärjestelmä. Tämä takaa matalat lämmityskulut. Kiinteistöön tulee valokuituyhteys. Vuokrapyyntö 3 360 euroa/kuukaudessa +alv. Sähkö, vesi ja lämmitysenergia laskutetaan kulutuksen mukaan. Kiinteistö valmistuu syksy 2025 aikana. 11kW sähköautolatauspaikan käyttöoikeus sisältyy vuokraan. Kohteella ei lain edellyttämää energiatodistusta tai energialuokka ei ole tiedossa. Lisää toimitiloja www.rhg.fi   

  Navigoi kohteeseen
Sauna Ei saunaa

Tony Rosenblad
Hallituksen puheenjohtaja
  +358 50 551 5375
  Lähetä viesti

Haluatko lisätietoja juuri tästä kohteesta?

Syötä yhteystietosi niin lähetämme lisätietoja!

Kiitos, otamme sinuun pian yhteyttä!