Kamppi
















| Kohdenumero | 11918 |
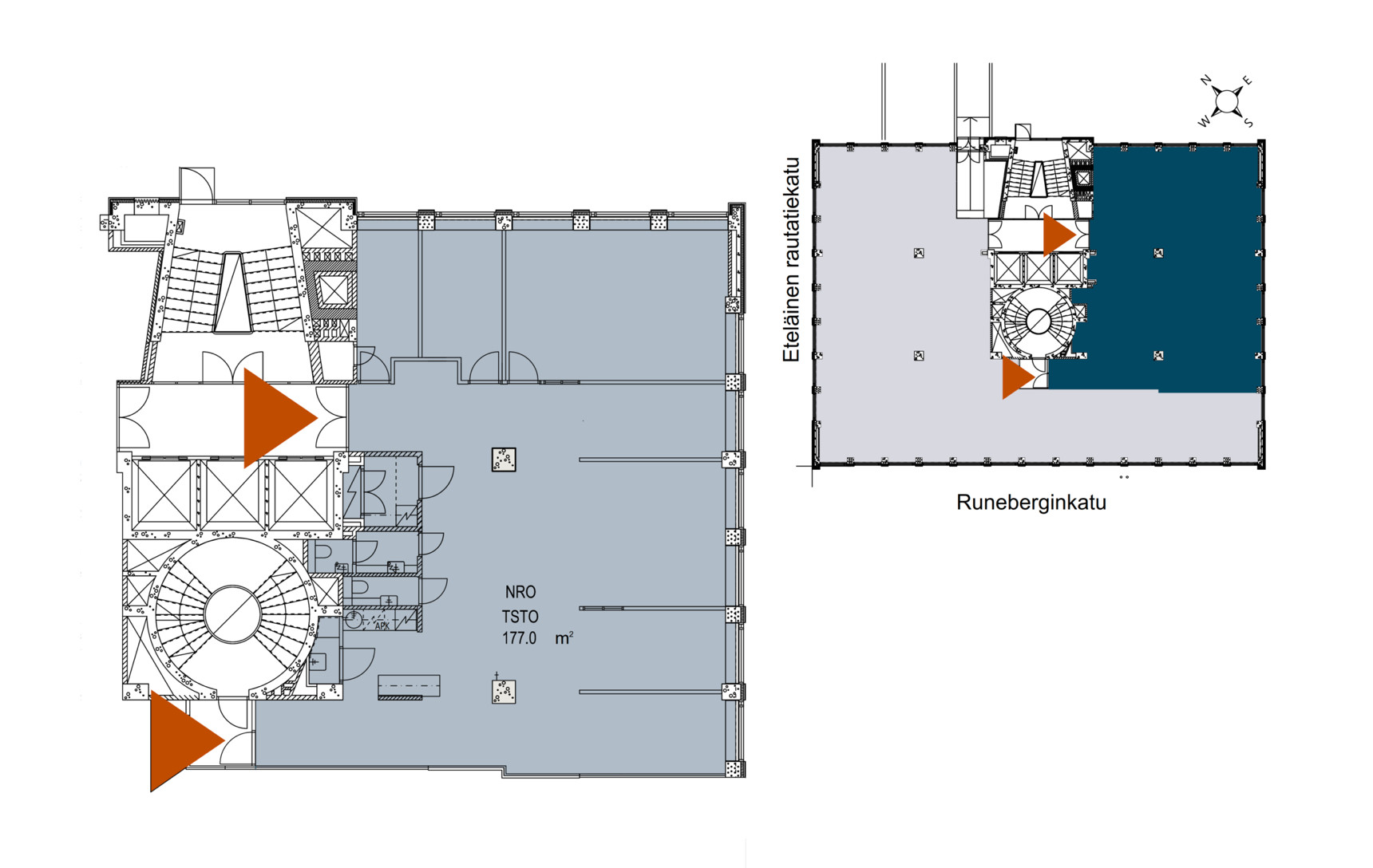
| Kohdetyyppi | Liiketila | Sijainti | Runeberginkatu 5 |
| Kaupunginosa | Kamppi |
| Huoneluku | |
| Pinta-ala | 177,0 m² |
| Vapautuminen | Heti vapaa |
| Vuokra / kk | 0 € |
| Sopimustyyppi | Toistaiseksi |
Vuokrataan muuttovalmis viidennen kerroksen 177m2 toimisto keskellä Kamppia, avotilaa ja huoneita. Toimistoon kaksi sisäänkäyntiä. Vapautuu sopimuksen mukaan. Toimistokerroksista on hissiyhteys autohalliin. Pyöräilijöille pyöräparkit ja suihkutilat. Kiinteistössä on jäähdytys puhallinkonvektoreilla. Kiinteistössä on tehty julkisivun ja yleisten tilojen kunnostustöitä kunnioittaen talon henkeä ja arkkitehtuuria. Pyöräilijöille pyöräparkit ja suihkutilat. Kysy lisää: jouko.raitanen@rhg.fi/0504695444
| Sauna | Ei saunaa |
Jouko Raitanen
050 469 5444
Lähetä viesti