





































| Kohdenumero | 11902 |
| Kohdetyyppi | Toimistotila | Sijainti | Elimäenkatu 9 |
| Kaupunginosa | |
| Huoneluku | |
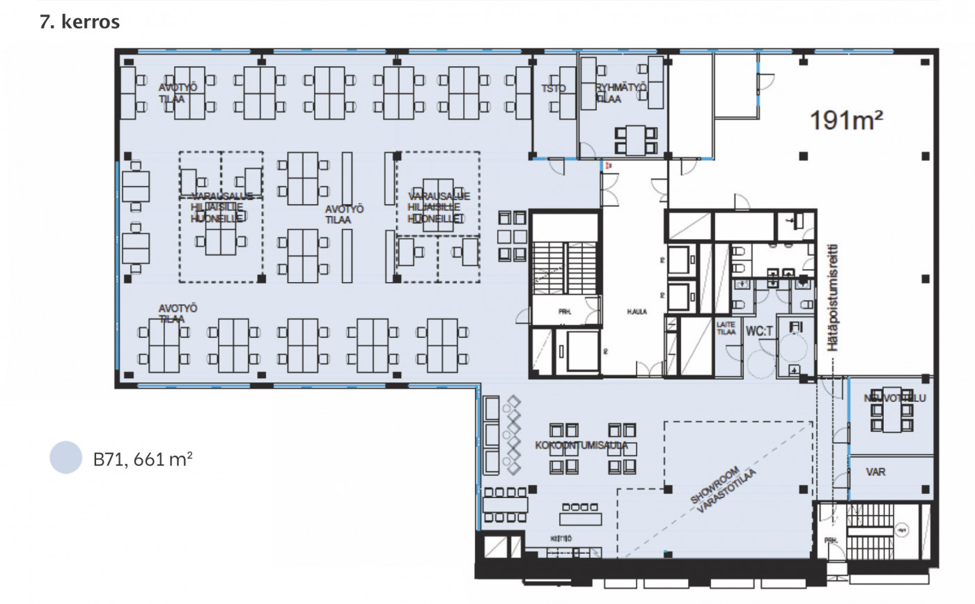
| Pinta-ala | 661,0 m² |
| Vapautuminen | Heti vapaa |
| Vuokra / kk | 0 € |
| Sopimustyyppi | Toistaiseksi |
Vuokrataan seitsemännen kerroksen 661m2 toimistotila, joka on muokattavissa juuri sellaiseksi että se palvelee yrityksen tarpeita optimaalisesti. Modernit puitteet klassikkotalossa ovat inspiroiva työympäristö, niin työntekijöille kuin asiakkaillekin. Kiinteistössä on Fazerin lounasravintola- ja kahvilakonsepti Ravintola Kravattitehdas. Talossa on eri kokoisia kokoustiloja ja auditorio (60-70 hlö) uudistettu 2018. Kiinteistössä myös sähköauton latauspiste. Tulossa lainapolkupyöriä. Autopaikkoja on yhteensä 176. Naapuritontilla on Q-Park Vallila, jossa on 700 pysäköintipaikkaa Julkisen liikenteen osalta raitiovaunu- ja bussipysäkkejä löytyy muutaman sadan metrin päästä, lähimmät raideliikenteen asemat puolestaan Pasilasta (juna) ja Sörnäisistä (metro). Kysy lisää Jouko Raitanen Helsinki puh. 0504695444
| Sauna | Ei saunaa |
Jouko Raitanen
050 469 5444
Lähetä viesti