





































| Kohdenumero | 11901 |
| Kohdetyyppi | Toimistotila | Sijainti | Elimäenkatu 9 |
| Kaupunginosa | |
| Huoneluku | |
| Pinta-ala | 532,0 m² |
| Vapautuminen | Heti vapaa |
| Vuokra / kk | 0 € |
| Sopimustyyppi | Toistaiseksi |
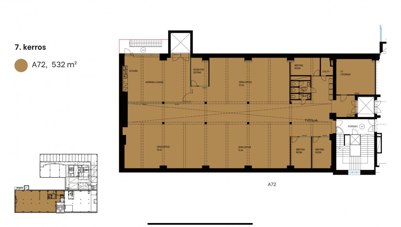
Vuokrataan seitsemännen kerroksen 532m2 ainutlaatuinen ullakkotoimisto, jossa oma tavarahissi. Tila on muokattavissa juuri sellaiseksi että se palvelee yrityksen tarpeita optimaalisesti. Modernit puitteet klassikkotalossa ovat inspiroiva työympäristö, niin työntekijöille kuin asiakkaillekin. Kiinteistössä on Fazerin lounasravintola- ja kahvilakonsepti Ravintola Kravattitehdas. Talossa on eri kokoisia kokoustiloja ja auditorio (60-70 hlö) uudistettu 2018. Kiinteistössä myös sähköauton latauspiste. Tulossa lainapolkupyöriä. Autopaikkoja on yhteensä 176. Naapuritontilla on Q-Park Vallila, jossa on 700 pysäköintipaikkaa Julkisen liikenteen osalta raitiovaunu- ja bussipysäkkejä löytyy muutaman sadan metrin päästä, lähimmät raideliikenteen asemat puolestaan Pasilasta (juna) ja Sörnäisistä (metro). Kysy lisää: jouko.raitanen@rhg.fi/0504695444
| Sauna | Ei saunaa |
Jouko Raitanen
050 469 5444
Lähetä viesti