







| Kohdenumero | 11887 |
| Kohdetyyppi | Liiketila | Sijainti | Suomalaistentie 5 |
| Kaupunginosa | Suomenoja |
| Huoneluku | |
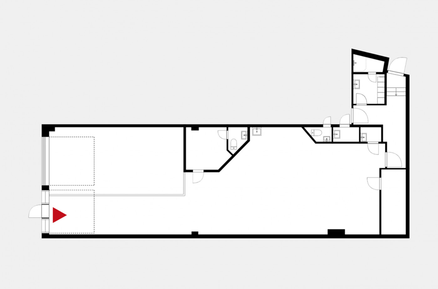
| Pinta-ala | 210,5 m² |
| Ranta | Ei valittu |
| Rannan tyyppi | Meri |
| Vapautuminen | Heti vapaa |
| Vuokra / kk | 0 € |
| Sopimustyyppi | Toistaiseksi |
Vuokrataan loistava 210,5 m² liiketila Suomalaistentien liikekeskuksessa, Espoon Suomenojan vilkkaassa ja näkyvässä liikenteen solmukohdassa lähellä Länsiväylää. Vuonna 2015 valmistuneessa, modernissa liikekeskuksessa sijaitseva tila toimii tällä hetkellä autopesulana, mutta soveltuu erinomaisesti myös muuhun käyttöön. Liiketila tarjoaa monipuoliset mahdollisuudet eri liiketoimintakonsepteille sekä näkyvän sijainnin. Tämä on erinomainen valinta yrityksille, jotka haluavat hyödyntää alueen vahvan asiakasvirran ja näkyvyyden. Tartu tilaisuuteen ja tuo yrityksesi osaksi Suomenojan kehittyvää liikekeskittymää! Kysy lisää: jouko.raitanen@rhg.fi/0504695444
| Sauna | Ei saunaa |
Jouko Raitanen
050 469 5444
Lähetä viesti