Kallio


































| Kohdenumero | 11848 |
| Kohdetyyppi | Toimistotila | Sijainti | Kaikukatu 3 |
| Kaupunginosa | Kallio |
| Huoneluku | |
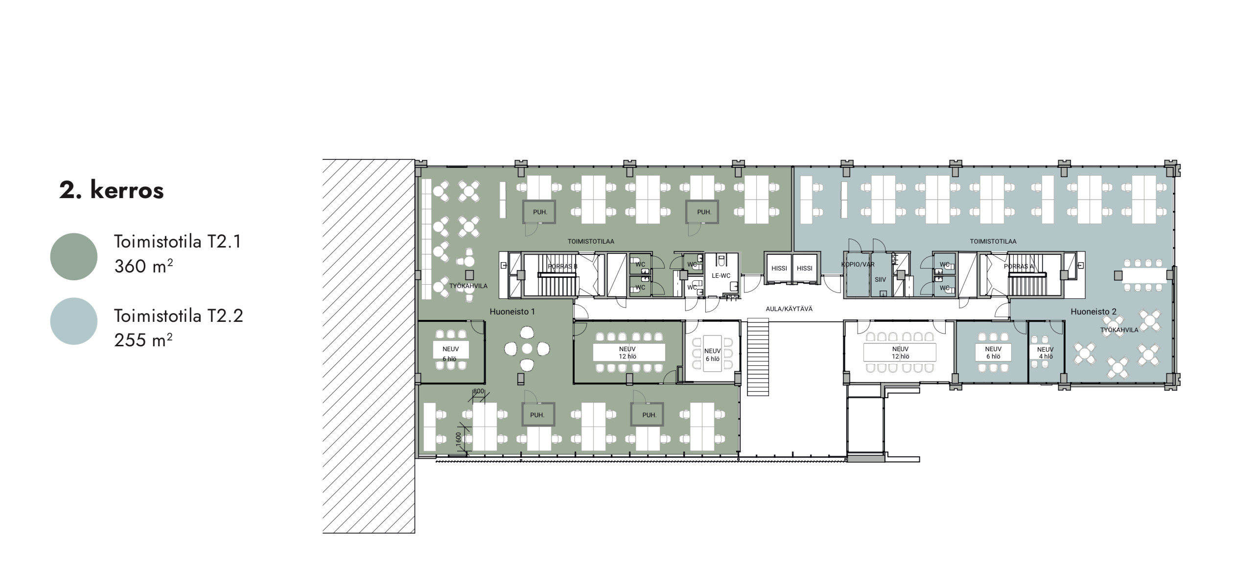
| Pinta-ala | 255,0 m² |
| Ranta | Ei valittu |
| Rannan tyyppi | Meri |
| Vapautuminen | Heti vapaa |
| Vuokra / kk | 0 € |
| Sopimustyyppi | Toistaiseksi |
Kaikukatu 3:ssa toisen kerroksen 255 m² toimistotila tarjoaa monipuoliset tilaratkaisut näkyvällä paikalla Helsingin Kalliossa. Tila on avara ja muunneltavissa. Kiinteistö sijaitsee vilkkaalla alueella hyvien liikenneyhteyksien varrella, ja lähellä on runsaasti palveluita. Tämä toimitila on ihanteellinen valinta yritykselle, joka etsii modernia ja helposti saavutettavaa tilaa Helsingin keskustan tuntumasta. Kysy lisää: jouko.raitanen@rhg.fi/0504695444
| Sauna | Ei saunaa |
Jouko Raitanen
050 469 5444
Lähetä viesti