Työpajankatu 10, 00580 Helsinki

Tuotantotila, 1161 m², Pientuotantotila, tavarahissi

0 € / kk

0 € / kk

Kalasatama

Perustiedot

Kohdenumero 11833
Kohdetyyppi Tuotantotila
Sijainti Työpajankatu 10
Kaupunginosa Kalasatama
Huoneluku Pientuotantotila, tavarahissi
Pinta-ala 1 161,0 m²
Ranta Ei valittu
Rannan tyyppi Meri
Vapautuminen Heti vapaa
Vuokra / kk 0 €
SopimustyyppiToistaiseksi
Video

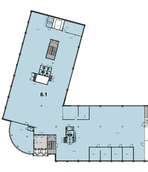
  Helsingin Yrittäjätalosta vuokrattavana 6. kerroksen pientuotantotila, johon tavarahissiyhteys. Tila on yhdistettävänä viereisen toimistotilan kanssa (224 m2). Tilassa on epoksilattia. Tarvittaessa tila voidaan jakaa. Yrittäjätalo on monien käyttäjien toimistotalo, joka sijaitsee hyvien kulkuyhteyksien varrella Kalasataman metroaseman vastapäätä.   

  Navigoi kohteeseen
Sauna Ei saunaa

Heli Reinberg

  040 647 4900
  Lähetä viesti

Haluatko lisätietoja juuri tästä kohteesta?

Syötä yhteystietosi niin lähetämme lisätietoja!

Kiitos, otamme sinuun pian yhteyttä!