
.jpeg)

.jpeg)
| Kohdenumero | 11740 |
| Kohdetyyppi | Varasto | Sijainti | Tehdaskylänkatu 11 |
| Kaupunginosa | |
| Kiinteistötunnus | |
| Huoneluku | |
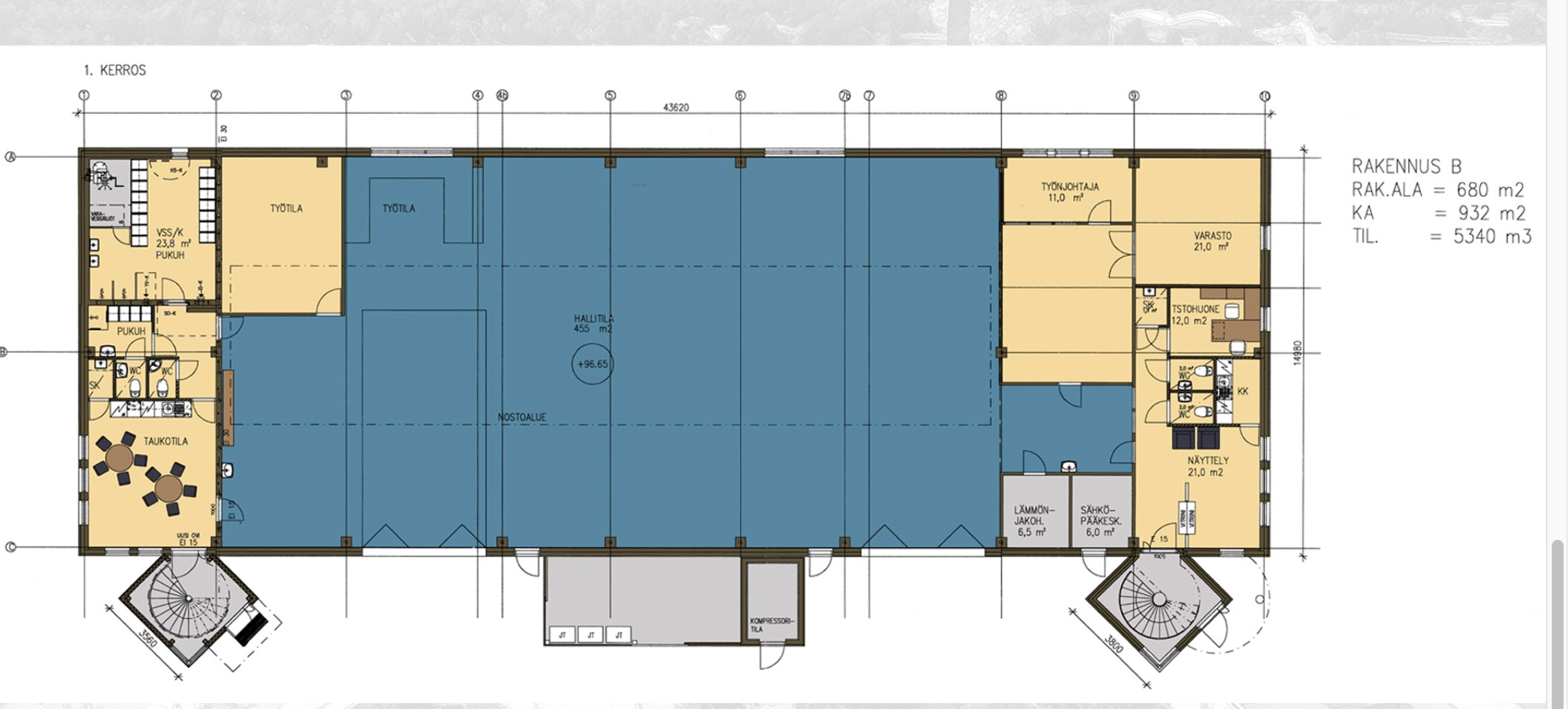
| Pinta-ala | 932,0 m² |
| Tontti | Oma tontti |
| Ranta | Ei valittu |
| Rannan tyyppi | Meri |
| Vapautuminen | Heti vapaa |
| Vuokra / kk | 6 058 € |
| Sopimustyyppi | Toistaiseksi |
Teollisuuskiinteistö hyvällä sijainnilla. Teollisuustilaa + toimistotilaa, 2 x nosto-ovi. Pihatilaa. Hallinosturi, Viemäri, Suihku, Sosiaalitilat, Kestopäällystetty piha-alue (asfaltti/betoni), Keittiö, Voimavirta, WC, 10 tkg kattonostin. -Rakennuksen kummassakin päässä sisäänkäynti. Kysy lisää mika.tilli@rhg.fi. 0407013005
| Sauna | Ei saunaa |
| Energiatodistus | Ei lain edellyttämää energiatodistusta |
Mika Tilli
Välittäjä, LKV
0407013005
Lähetä viesti