Kiljava


















| Kohdenumero | 11714 |
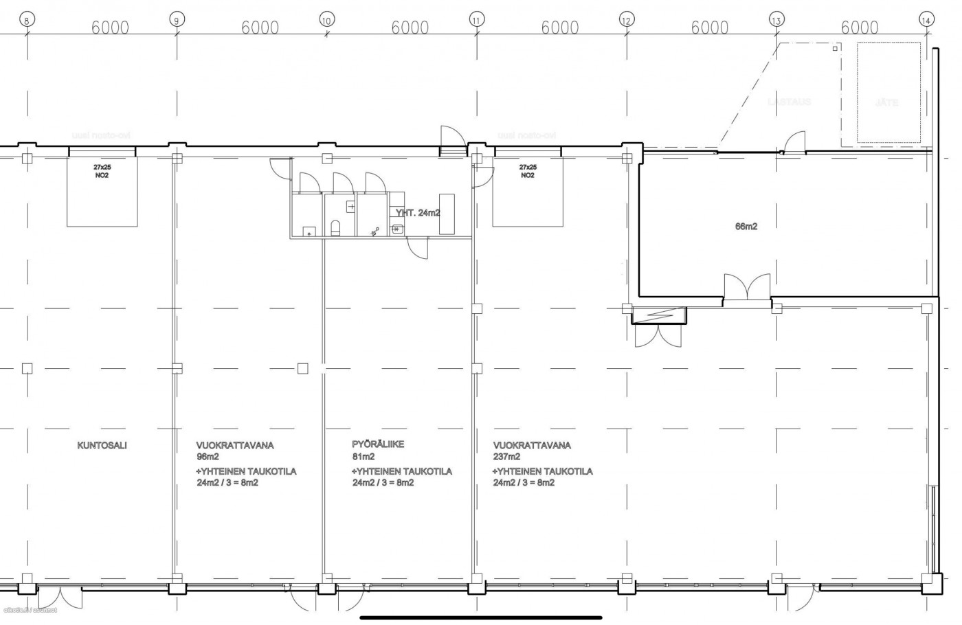
| Kohdetyyppi | Liiketila | Sijainti | Kiljavantie 3 |
| Kaupunginosa | Kiljava |
| Huoneluku | |
| Pinta-ala | 245,0 m² |
| Vapautuminen | Heti vapaa |
| Vuokra / kk | 1 960 € |
| Sopimustyyppi | Toistaiseksi |
Vuokrataan moneen käyttöön soveltuvaa 1.kerroksen remontoitua ja jäähdytettyä 245m2 liiketilaa. Vapaa korkeus on 3 metriä. Nosto-ovi ja erillinen lastausovi. Kylmä varastotila 66m2 sisältyy vuokraan. Uudet yhteiset sosiaalitilat: taukotila, WC, siivouskomero ja suihku. Uusittu ilmanvaihto, jäähdytys ja led valaistus. Viereisessä tilassa pyöräliike. Rajamäen parhaimmalla paikalla. Kysy lisää Jouko Raitanen Helsinki puh. 0504695444
| Sauna | Ei saunaa |
Jouko Raitanen
050 469 5444
Lähetä viesti