









| Kohdenumero | 11710 |
| Kohdetyyppi | Liiketila | Sijainti | Kauppiaskatu 4 |
| Kaupunginosa | |
| Huoneluku | |
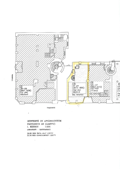
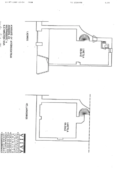
| Pinta-ala | 115,0 m² |
| Ranta | Ei valittu |
| Rannan tyyppi | Meri |
| Vapautuminen | Heti vapaa |
| Vuokra / kk | 3 960 € |
| Sopimustyyppi | Toistaiseksi |
Vuokrattavana katutason 115m2 siisti myymälätila osoitteessa Kauppiaskatu 4, Turku Loistava sijainti uudella pihakadulla aivan Hotel Hamburger Börs naapurissa. Tilakokonaisuus, jossa katutason 68 m2 liiketilan lisäksi alakerrassa 44 m2 kellaritilaa. Tila ei sovellu kahvila-ravintola käyttöön. Vuokrapyyntö 3 960 euroa/kk + alv. Sähkö ja vesi kulutuksen mukaan Heti vapaa Ei lain edellyttämää e-todistusta. Lisää toimitiloja www.rhg.fi
| Sauna | Ei saunaa |
Toimitilavälitys RHG Oy
Asuntomyymälä
Lähetä viesti