Kalasatama




| Kohdenumero | 11618 |
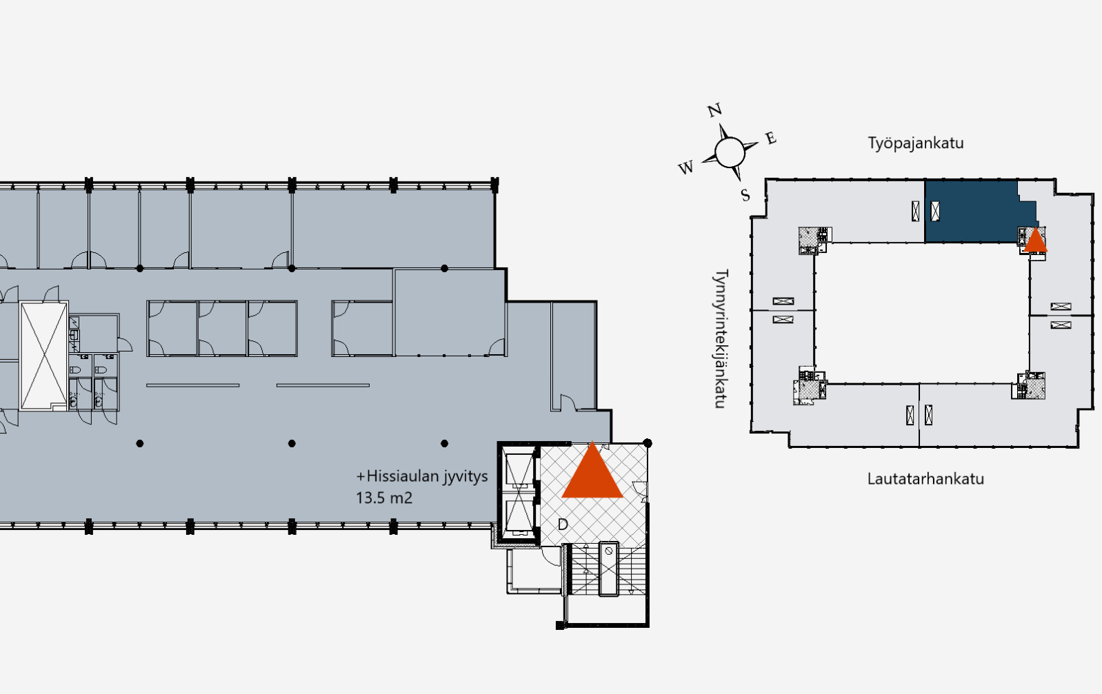
| Kohdetyyppi | Toimistotila | Sijainti | Työpajankatu 9 D |
| Kaupunginosa | Kalasatama |
| Huoneluku | |
| Pinta-ala | 521,0 m² |
| Vapautuminen | Heti vapaa |
| Vuokra / kk | 0 € |
| Sopimustyyppi | Toistaiseksi |
Vuokrataan hiljattain remontoitu 521,5m2 toimistotila, joka sijaitsee Troolin D-rapussa, viidennessä kerroksessa. Ikkunat avautuvat etelään sisäpihalle ja pohjoiseen kadulle, tarjoten avarat näkymät yli Teurastamon ja Tukkutorin. Tilassa on datakaapelointi talojakamosta vuokratilaan; kuitukaapelointi (4 yksimuoto + 4monimuoto) ja tilan sisäinen kaapelointi CAT6- kaapelointi. Kysy lisää Jouko Raitanen Helsinki puh. 0504695444
| Sauna | Ei saunaa |
Jouko Raitanen
050 469 5444
Lähetä viesti