

















| Kohdenumero | 11614 |
| Kohdetyyppi | Toimistotila | Sijainti | Yliopistonkatu 12b |
| Kaupunginosa | |
| Huoneluku | |
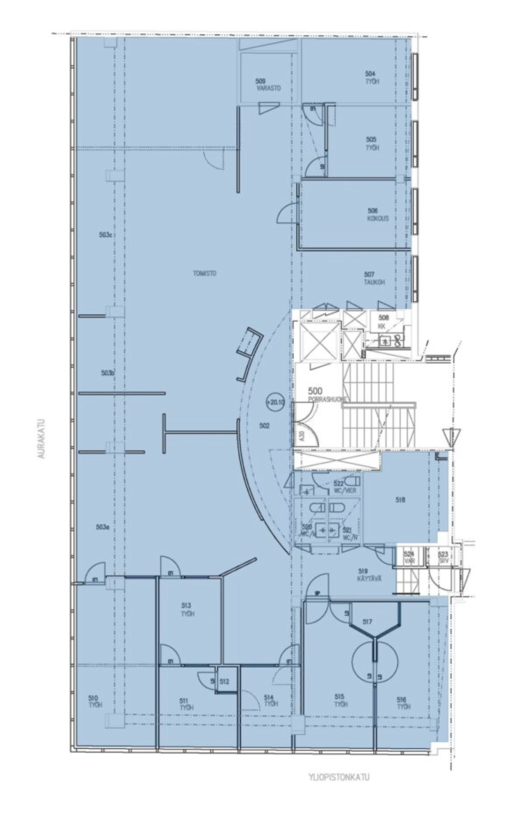
| Pinta-ala | 402,5 m² |
| Huoneiston kerros | 5 |
| Ranta | Ei valittu |
| Rannan tyyppi | Meri |
| Vapautuminen | Vapautuu sopimuksen mukaan |
| Vuokra / kk | 0 € |
| Sopimustyyppi | Toistaiseksi |
Vuokrattavissa 5.krs 402,5m2 siistikuntoinen toimistotila Turun kauppatorin kupeessa, osoitteessa Aurakatu 12b, Turku. Toimistotilasta avautuu upeat näkymät kauppatorin suuntaan. Tilakokonaisuus, jossa avotilan lisäksi 8–9 työhuonetta, neuvottelutilat, keittiö- ja taukotilat sekä 3 kpl wc-tiloja. Kiinteistön sisäpihalta ja Toriparkista on vuokrattavissa autopaikkoja. Vapautuu sopimuksen mukaan, kuitenkin viimeistään 1.10.2024 Ei lain edellyttämää e-todistusta Lisää toimistotiloja www.rhg.fi
| Sauna | Ei saunaa |
Tony Rosenblad
Hallituksen puheenjohtaja
+358 50 551 5375
Lähetä viesti