Taalintehtaankatu 4, 20750 TURKU

Varasto, 2257 m²

0 € / kk

0 € / kk

Perustiedot

Kohdenumero 11562
Kohdetyyppi Varasto
Sijainti Taalintehtaankatu 4
Kaupunginosa
Kiinteistötunnus
Huoneluku
Pinta-ala 2 257,0 m²
Tontti Vuokratontti
Tontin vuokranantaja
Vapautuminen Vapautuu: 01.01.2025
Vuokra / kk 0 €
SopimustyyppiToistaiseksi
Video

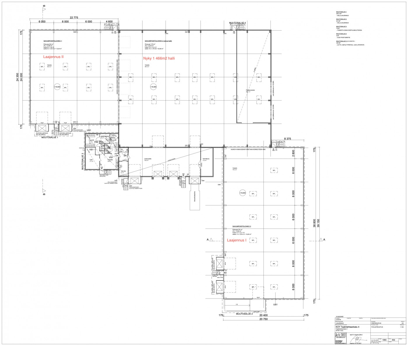
  Vuokrattavana 2 257m2 logistiikka-varastotila Lausteen kaupunginosassa, osoitteessa Taalintehtaankatu 4, Turku. Huippusijainti 800 m etäisyydellä Turku-Helsinki moottoritien liittymästä, 3.5 km Turun keskustasta itään. Tilakokonaisuus, jossa olemassa oleva 1 466m2 logistiikkahalli laajennetaan 791m2 lisäosalla. (Pohjakuvassa laajennus I). Vapaa korkeus 8 m. Nykyisen hallin sisällä on tällä hetkellä erillinen 200 m2:n pakkasvarasto. Lisäksi kiinteistöstä löytyy toimisto, sos. ja muita aputiloja n.100 m2. Alkuperäinen käyttötarkoitus on ollut kylmäterminaali, mutta nykyinen vuokralainen käyttänyt tilaa lämpimänä logistiikkatilana. Laajennuksen jälkeen tila on jaettavissa tarvittaessa kahteen erilliseen varastoon, joilla jokaisella omat lastaustaskut käytössä. Lisäksi yksi maantasoyhteys. Lattian kantavuus 3000 kg. Iso asfaltoitu ja kokonaan aidattu pihapiiri. Pihalla kuljetusajoneuvoille useita sähköpistokepaikkoja. Lisäosa valmistuu n. 8 kuukautta vuokrasopimuksen allekirjoittamisesta. Kysy lisätietoja.   

  Navigoi kohteeseen
Sauna Ei saunaa
Energiatodistus Ei lain edellyttämää energiatodistusta

Tony Rosenblad
Hallituksen puheenjohtaja
  +358 50 551 5375
  Lähetä viesti

Haluatko lisätietoja juuri tästä kohteesta?

Syötä yhteystietosi niin lähetämme lisätietoja!

Kiitos, otamme sinuun pian yhteyttä!