Vääksyntie 2, 00510 Helsinki

Toimistotila, 935 m²

0 € / kk

0 € / kk

Vallila

Perustiedot

Kohdenumero 11535
Kohdetyyppi Toimistotila
Sijainti Vääksyntie 2
Kaupunginosa Vallila
Huoneluku
Pinta-ala 935,0 m²
Ranta Ei valittu
Rannan tyyppi Meri
Vapautuminen Heti vapaa
Vuokra / kk 0 €
SopimustyyppiToistaiseksi
Video

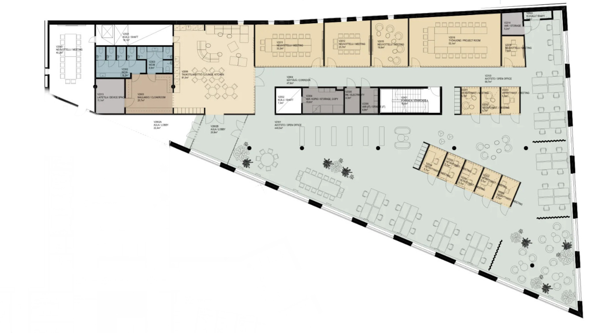
  Vuokrataan toisen kerroksen laadukas 935m2 toimistotila. Tilassa avotilaa, jonka llisäksi vetäytymis- ja kokoushuoneita. Tiloissa on suuret ikkunat Teollisuuskadun ja Vääksyntien suuntiin. Laadukas aulapalvelu toimii sekä työntekijöiden että kävijöiden tukena. Vääksy 2 -rakennus edustaa ensiluokkaista toimistosuunnittelua, jossa kestävyys yhdistyy monenlaisia käyttäjiä palvelevaan huippulaatuun. Toimitilat tarjoavat joustavia tilaratkaisuja ja ne on suunniteltu huolellisesti käyttäen laadukkaita ja kestäviä materiaaleja. Ensisijainen tavoite on tukea työntekijöiden tyytyväisyyttä. Kiinteistön tilojen suunnittelussa on kiinnitetty erityistä huomiota työntekijöiden tyytyväisyyteen, mutta myös tilojen joustavuuteen ja materiaalien korkeaan laatuun. Työntekijät hyötyvät erinomaisista julkisista liikenneyhteyksistä, mukaan lukien lähes kaikki liikennemuodot, ja suuresta maanalaisesta pysäköintikapasiteetista, ja pääteille pääsee helposti läheltä. Toimistovuokralaiset saavat käyttöönsä Vallila-korttelin – Pohjoismaiden johtavan toimistokompleksin – voittamattoman palveluvalikoiman. Monipuoliset ja runsaat palvelut luovat parhaat mahdolliset puitteet ensiluokkaiselle työskentelyilmapiirille, jonka veroista vaikea löytää. Kiinteistön palvelut Auditorio Aulapalvelu Catering Hieroja Kuntosali Lounasravintola Pukeutumis- ja pesutilat Pyörävarasto Vuokrattavia neuvottelutiloja Kysy lisää: jouko.raitanen@rhg.fi/0504695444   

  Navigoi kohteeseen
Sauna Ei saunaa

Jouko Raitanen

  050 469 5444
  Lähetä viesti

Haluatko lisätietoja juuri tästä kohteesta?

Syötä yhteystietosi niin lähetämme lisätietoja!

Kiitos, otamme sinuun pian yhteyttä!