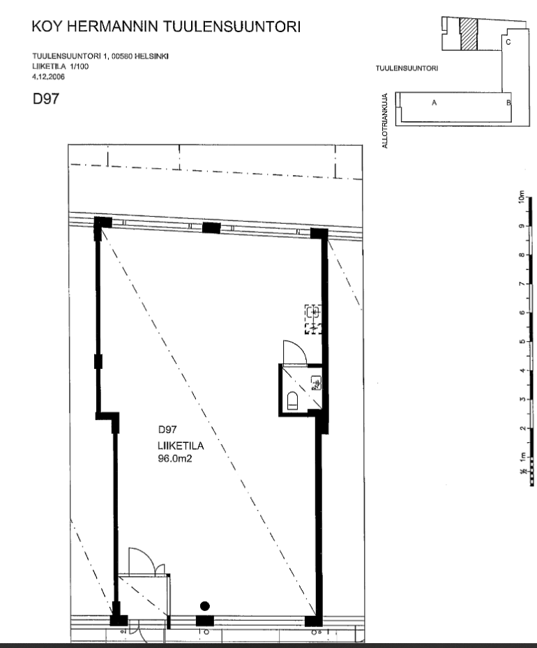
Tuulensuuntori 1, 00580 Helsinki

Liiketila, 96 m², Katutaso

0 € / kk

0 € / kk

Hermanni

Perustiedot

Kohdenumero 11502
Kohdetyyppi Liiketila
Sijainti Tuulensuuntori 1
Kaupunginosa Hermanni
Huoneluku Katutaso
Pinta-ala 96,0 m²
Ranta Ei valittu
Rannan tyyppi Meri
Vapautuminen Heti vapaa
Vuokra / kk 0 €
SopimustyyppiToistaiseksi
Video

  Vuokrattavana katutason liiketila (96 m2), joka soveltuu myös toimistoksi. Tila sijaitsee senioritalon kivijalassa sisäpihalla. Hyvät kulkuyhteydet ( bussipysäkki n 200 m päässä, Sörnäisten metroasema myös kivenheidon päässä).   

  Navigoi kohteeseen
Sauna Ei saunaa

Heli Reinberg

  040 647 4900
  Lähetä viesti

Haluatko lisätietoja juuri tästä kohteesta?

Syötä yhteystietosi niin lähetämme lisätietoja!

Kiitos, otamme sinuun pian yhteyttä!